Prix
275 000€
275 000€
Type
Appt. au 0-RDC
Appt. au 0-RDC
Pièces
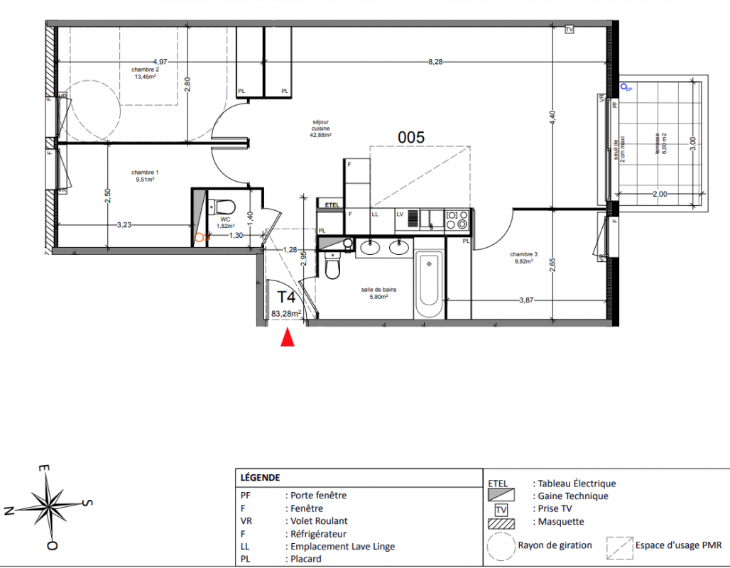
T4
T4
Surface
86.28 m²
86.28 m²
Exposition
Sud
Sud
Ville
Agde (34300)
Agde (34300)
Livraison
1er trimestre 2026
1er trimestre 2026
Informations
01 81 80 39 10
01 81 80 39 10
Présentation du programme "ONYX"
UN EMPLACEMENT IDÉAL Arrêt de bus « Les Garrigues » : au pied de la résidence Centre commercial : les portes du litoral : 5 min Plage de Rochelongue et Richelieu : 10 min Port du cap d’Agde : 12 min Aéroport : 16 min Sète et Bézier : 30 min 60 LOGEMENTS DU STUDIO AU 4 PIÈCES TERRASSE OU REZ-DE-JARDIN Des extérieurs pour chaque logement.Un emplacement de 1er choixUne architecture élégante et moderneDes appartements à la conception unique