Prix
289 000€
Type
Appt. au 0-RDC
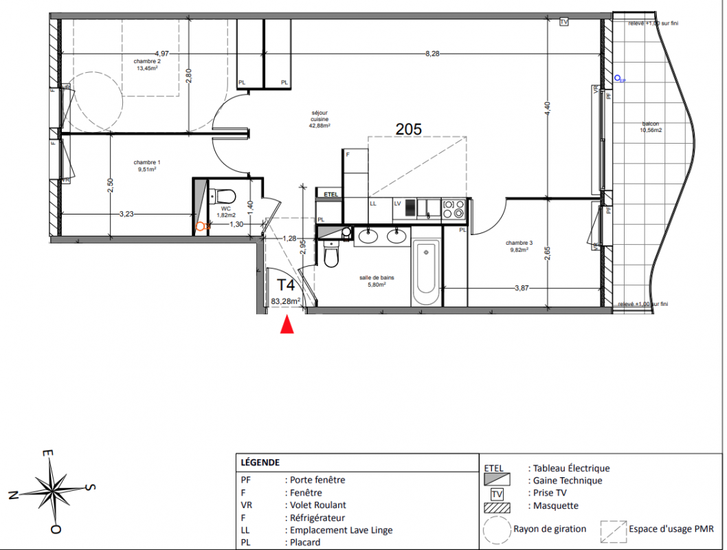
Pièces
T4
Surface
88.56 m²
Exposition
Est
Ville
Agde (34300)
Livraison
1er trimestre 2026
Informations
01 81 80 39 10

Présentation du programme "ONYX"

UN EMPLACEMENT IDÉAL Arrêt de bus « Les Garrigues » : au pied de la résidence Centre commercial : les portes du litoral : 5 min Plage de Rochelongue et Richelieu : 10 min Port du cap d’Agde : 12 min Aéroport : 16 min Sète et Bézier : 30 min 60 LOGEMENTS DU STUDIO AU 4 PIÈCES TERRASSE OU REZ-DE-JARDIN Des extérieurs pour chaque logement.Un emplacement de 1er choixUne architecture élégante et moderneDes appartements à la conception unique

Autres logements T4 du programme "ONYX"

Disponibilité Prix Genre Pièces Surface Étage
Voir
Disponible
275 000€ Appt. T4 86.28m2 0-RDC