Prix
143 461€
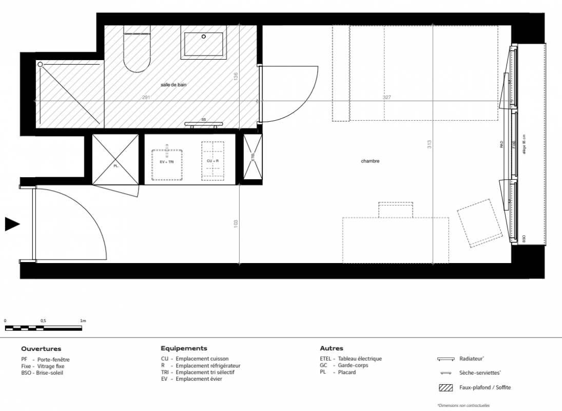
Type
Appt. au 3ème
Pièces
Studio
Surface
18 m²
Exposition
Est
Ville
Orsay (91400)
Livraison
4ème trimestre 2028
Informations
01 81 80 39 10

Présentation du programme "STUDENT FACTORY PARIS SACLAY"

[IDEAL INVESTISSEUR] Résidence Etudiants à ORSAY (91). Bénéficiez d'une fiscalité avantageuse avec le statut LMNP (Loueur Meublé Non Professionnel), dont le statut vous permet de bénéficier de nombreux avantages fiscaux. Les revenus d’une location meublée bénéficient d’abattements et de déductions plus importants que les revenus perçus sur un logement loué nu. Des revenus quasi sans impôt pendant plus de 10 ans.
La future résidence STUDENT FACTORY offre un cadre de vie exceptionnel aux étudiants : des appartements confortables entièrement équipés et « prêts à vivre », des espaces communs adaptés aux études avec de nombreux services, ainsi qu'un emplacement de choix.
À seulement 23 kilomètres de la porte de Saint-Cloud, Orsay se distingue comme le cœur du plateau de Saclay, un véritable foyer d’innovation à la française. L’Université Paris-Saclay, classée n°1 en Europe et dans le Top 20 mondial pour les sciences, attire étudiants et chercheurs du monde entier.
Le territoire accueille également de grandes écoles prestigieuses : Polytech Paris-Saclay, ENSAE, ENSTA, CentraleSupélec, AgroParisTech, contribuant au rayonnement international de ce pôle d’excellence.
La gare RER Le Guichet, à proximité immédiate, permet de rejoindre le centre de Paris en moins de 40 minutes. En 2026, la ligne 18 du Grand Paris Express desservira les gares Université Paris-Saclay et Polytechnique, à proximité de la résidence. Contactez-nous dés à présent pour plus d’informations sur le statut LMNP et sur cette résidence 0800 124 124 ...

Autres logements Studio du programme "STUDENT FACTORY PARIS SACLAY"

Disponibilité Prix Genre Pièces Surface Étage
Voir
Optionné
142 261€ Appt. Studio 18m2 1er
Voir
Disponible
140 461€ Appt. Studio 17.6m2 1er
Voir
Disponible
142 621€ Appt. Studio 17.9m2 1er
Voir
Optionné
142 621€ Appt. Studio 17.9m2 1er
Voir
Disponible
142 261€ Appt. Studio 18m2 1er
Voir
Optionné
142 741€ Appt. Studio 17.8m2 2ème
Voir
Disponible
143 221€ Appt. Studio 17.9m2 2ème
Voir
Optionné
160 141€ Appt. Studio 20m2 2ème
Voir
Optionné
143 221€ Appt. Studio 17.9m2 2ème
Voir
Disponible
143 221€ Appt. Studio 17.9m2 2ème
Voir
Optionné
143 221€ Appt. Studio 17.9m2 2ème
Voir
Optionné
142 501€ Appt. Studio 17.8m2 2ème
Voir
Optionné
142 021€ Appt. Studio 17.9m2 2ème
Voir
Disponible
143 701€ Appt. Studio 18m2 2ème
Voir
Optionné
144 301€ Appt. Studio 18m2 3ème
Voir
Optionné
143 341€ Appt. Studio 17.8m2 3ème
Voir
Disponible
143 821€ Appt. Studio 17.9m2 3ème
Voir
Disponible
143 821€ Appt. Studio 17.9m2 3ème
Voir
Optionné
143 821€ Appt. Studio 17.9m2 3ème
Voir
Optionné
143 101€ Appt. Studio 17.8m2 3ème
Voir
Optionné
142 621€ Appt. Studio 17.9m2 3ème
Voir
Optionné
143 461€ Appt. Studio 18m2 3ème
Voir
Optionné
143 461€ Appt. Studio 18m2 3ème
Voir
Disponible
144 661€ Appt. Studio 18m2 3ème
Voir
Disponible
144 301€ Appt. Studio 18m2 3ème
Voir
Disponible
144 901€ Appt. Studio 18m2 4ème
Voir
Disponible
144 061€ Appt. Studio 18m2 4ème
Voir
Disponible
144 421€ Appt. Studio 17.9m2 4ème
Voir
Optionné
144 421€ Appt. Studio 17.9m2 4ème
Voir
Disponible
144 421€ Appt. Studio 17.9m2 4ème
Voir
Disponible
144 421€ Appt. Studio 17.9m2 4ème
Voir
Optionné
144 421€ Appt. Studio 17.9m2 4ème
Voir
Disponible
144 421€ Appt. Studio 17.9m2 4ème
Voir
Disponible
143 701€ Appt. Studio 17.8m2 4ème
Voir
Disponible
144 061€ Appt. Studio 18m2 4ème
Voir
Disponible
144 901€ Appt. Studio 18m2 4ème
Voir
Optionné
145 501€ Appt. Studio 18m2 5ème
Voir
Optionné
143 701€ Appt. Studio 17.7m2 5ème
Voir
Optionné
145 021€ Appt. Studio 17.9m2 5ème
Voir
Disponible
145 021€ Appt. Studio 17.9m2 5ème
Voir
Disponible
145 021€ Appt. Studio 17.9m2 5ème
Voir
Disponible
144 301€ Appt. Studio 17.8m2 5ème
Voir
Disponible
144 661€ Appt. Studio 18m2 5ème
Voir
Disponible
144 661€ Appt. Studio 18m2 5ème
Voir
Optionné
145 501€ Appt. Studio 18m2 5ème
DO NOT CLICK