320 647€
Appt. au 1er
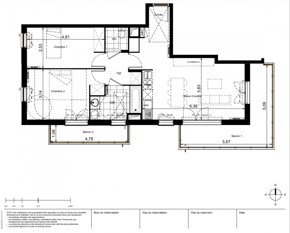
T3
66.7 m²
-
Brunoy (91800)
1er trimestre 2028
01 81 80 39 10
Présentation du programme "Le Moulin de Cerçay"
Découvrez votre nouvelle résidence "Le Moulin de Cerçay", située à seulement 25 kilomètres de Paris, dans un environnement résidentiel calme et verdoyant, en bordure de l'Yerres. Idéalement située, la ville de Brunoy dispose d'infrastructures essentielles au quotidien (établissements médicaux, équipements sportifs, théâtre, médiathèque et espaces culturels), ainsi que des établissements scolaires de la maternelle au lycée. Son accessibilité est assurée par la ligne D du RER, un réseau de bus dense, ainsi qu'un accès rapide à l'A6 et à la N104. Le Moulin de Cerçay dispose notamment d'un arrêt de bus à moins de 200 m, permettant de rejoindre la gare RER D de Brunoy en 10 minutes. Répartis sur 2 bâtiments à taille humaine, la résidence dispose de 66 logements, du studio au 4 pièces, chacun offrant des aménagements optimisés qui maximisent la luminosité et la sensation d'espace. Tous les appartements disposent d'un espace extérieur privatif (balcon, terrasse ou jardin), offrant pour les derniers étages des vues dégagées sur la vallée de l'Yerres. Côté route de Brie, l'alignement de chênes remarquables vient renforcer la tranquillité des habitants et s'intègre parfaitement au jardin fleuri et arboré en coeur d'îlot qui vient agrémenter l'intimité et le confort du lieu. La résidence propose une architecture moderne élégante et s'intègre harmonieusement avec la partie habitation pavillonnaire de la route de Brie, avec l'usage du bois et de teintes naturelles et des lignes en adéquation avec l'architecture environnante. Prenez rendez-vous dès aujourd'hui pour découvrir tout ce que notre nouvelle résidence immobilière a à vous offrir. Ne manquez pas également l'opportunité de bénéficier d'une TVA réduite à 5,5 %, sous réserve de certaines conditions, ainsi que du nouveau prêt à taux zéro.
Autres logements T3 du programme "Le Moulin de Cerçay"
| Disponibilité | Prix | No | Genre | Pièces | Surface | Étage | Disponibilité | Prix | ||
|---|---|---|---|---|---|---|---|---|---|---|
| Voir | Disponible | 302 455€ | 1103 | Appt. | T3 | 65.15m2 | 1er | Disponible | 302 455€ | Voir |
| Voir | Disponible | 303 607€ | 1104 | Appt. | T3 | 65.1m2 | 1er | Disponible | 303 607€ | Voir |
| Voir | Disponible | 307 207€ | 1107 | Appt. | T3 | 62.2m2 | 1er | Disponible | 307 207€ | Voir |
| Voir | Disponible | 325 207€ | 1202 | Appt. | T3 | 66.7m2 | 2ème | Disponible | 325 207€ | Voir |
| Voir | Disponible | 304 732€ | 1203 | Appt. | T3 | 65.2m2 | 2ème | Disponible | 304 732€ | Voir |
| Voir | Disponible | 309 247€ | 1207 | Appt. | T3 | 62.2m2 | 2ème | Disponible | 309 247€ | Voir |
| Voir | Disponible | 327 600€ | 1302 | Appt. | T3 | 57.7m2 | 3ème | Disponible | 327 600€ | Voir |
| Voir | Disponible | 307 200€ | 1303 | Appt. | T3 | 65.2m2 | 3ème | Disponible | 307 200€ | Voir |
| Voir | Disponible | 307 200€ | 1304 | Appt. | T3 | 65.1m2 | 3ème | Disponible | 307 200€ | Voir |
| Voir | Disponible | 311 784€ | 1307 | Appt. | T3 | 62.2m2 | 3ème | Disponible | 311 784€ | Voir |
| Voir | Disponible | 307 205€ | 2001 | Appt. | T3 | 64.75m2 | 0-RDC | Disponible | 307 205€ | Voir |
| Voir | Disponible | 293 460€ | 2102 | Appt. | T3 | 63.1m2 | 1er | Disponible | 293 460€ | Voir |
| Voir | Disponible | 309 516€ | 2106 | Appt. | T3 | 65.45m2 | 1er | Disponible | 309 516€ | Voir |
| Voir | Disponible | 311 784€ | 2107 | Appt. | T3 | 66.1m2 | 1er | Disponible | 311 784€ | Voir |
| Voir | Disponible | 316 320€ | 2201 | Appt. | T3 | 65.4m2 | 2ème | Disponible | 316 320€ | Voir |
| Voir | Disponible | 317 471€ | 2206 | Appt. | T3 | 65.45m2 | 2ème | Disponible | 317 471€ | Voir |
| Voir | Disponible | 316 333€ | 2207 | Appt. | T3 | 66.1m2 | 2ème | Disponible | 316 333€ | Voir |
| Voir | Disponible | 318 600€ | 2306 | Appt. | T3 | 65.45m2 | 3ème | Disponible | 318 600€ | Voir |
| Voir | Disponible | 320 880€ | 2307 | Appt. | T3 | 65.7m2 | 3ème | Disponible | 320 880€ | Voir |
| Voir | Disponible | 309 600€ | 2403 | Appt. | T3 | 61.05m2 | 4ème | Disponible | 309 600€ | Voir |
| Voir | Disponible | 285 600€ | 2404 | Appt. | T3 | 54m2 | 4ème | Disponible | 285 600€ | Voir |
| Voir | Disponible | 294 744€ | 2002 | Appt. | T3 | 63.55m2 | 0-RDC | Disponible | 294 744€ | Voir |