158 652€
Appt. au 11ème
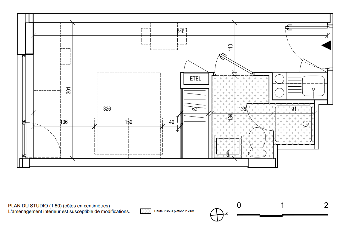
Studio
18.6 m²
Sud
Rennes (35000)
2ème trimestre 2027
01 81 80 39 10
Présentation du programme "Campus Créatif 5"
Investissez à Rennes, une ville qui offre un cadre de vie exceptionnelVille d’histoire et d’innovation : labellisée Ville d’Art et d’Histoire, Rennes allie un riche patrimoine médiéval (maisons à colombages, centre historique) à un développement urbain moderne et durable.De nombreux espaces verts tels que le parc Thabor, un des plus beaux de France, et les berges de la Vilaine pour les balades et activités sportives.Une vie culturelle riche avec des théâtres, musées, festivals, et centres artistiques.Rennes est régulièrement citée parmi les villes les plus agréables à vivre grâce à son accessibilité, son ambiance conviviale et son équilibre entre nature et urbanisme. Rennes, une ville étudiante et attractiveRennes, ville universitaire française avec 70 000 étudiants représentant 25% de la population, est une destination idéale pour un investissement locatif étudiant.Pôle technologique et d’innovation, Rennes bénéficie d’un dynamisme économique qui attire étudiants, familles et jeunes actifs.Un marché locatif en forte demande : la combinaison d’une population étudiante croissante et d’une offre de logements moderne et adaptée assure un taux de remplissage optimal. Commodités et transportsLa résidence se situe dans un quartier prisé, à quelques minutes à pied du centre historique et des grands espaces verts comme le parc Thabor.À proximité immédiate des commerces de quartier, des centres commerciaux et des nombreux restaurants et cafés qui animent la ville.Réseau du bus STAR et lignes A et B du métro facilement accessibles à pied et permettant de se rendre rapidement dans les principaux quartiers et périphéries de Rennes. Focus prestations/résidenceDes appartements clé en main : entièrement équipés pour un confort optimal (kitchenette, salle d’eau aménagée, espace bureau, rangements et télévision).Des espaces communs de qualité : cafétéria, salles de travail, salle de fitness, rooftop et espaces verts.Une conception éco-responsable : toit végétalisé pour favoriser la biodiversité, connexion au chauffage urbain pour réduire l’empreinte carbone et des panneaux photovoltaïques pour une gestion énergétique durable. Le + du programmeUne localisation stratégique : située dans le quartier prisé de Solférino, à proximité immédiate des écoles ESMA et CinéCréatis, offrant un environnement idéal pour les étudiants. Découvrez la vidéo du programme ici
Autres logements Studio du programme "Campus Créatif 5"
| Disponibilité | Prix | No | Genre | Pièces | Surface | Étage | Disponibilité | Prix | ||
|---|---|---|---|---|---|---|---|---|---|---|
| Voir | Disponible | 149 616€ | C107 | Appt. | Studio | 18.6m2 | 1er | Disponible | 149 616€ | Voir |
| Voir | Disponible | 149 616€ | C106 | Appt. | Studio | 18.6m2 | 1er | Disponible | 149 616€ | Voir |
| Voir | Disponible | 151 164€ | C304 | Appt. | Studio | 18.6m2 | 3ème | Disponible | 151 164€ | Voir |
| Voir | Disponible | 151 164€ | C303 | Appt. | Studio | 18.6m2 | 3ème | Disponible | 151 164€ | Voir |
| Voir | Disponible | 151 788€ | C411 | Appt. | Studio | 18.6m2 | 4ème | Disponible | 151 788€ | Voir |
| Voir | Disponible | 152 100€ | C219 | Appt. | Studio | 18.6m2 | 2ème | Disponible | 152 100€ | Voir |
| Voir | Disponible | 152 100€ | C218 | Appt. | Studio | 18.6m2 | 2ème | Disponible | 152 100€ | Voir |
| Voir | Disponible | 152 100€ | C217 | Appt. | Studio | 18.6m2 | 2ème | Disponible | 152 100€ | Voir |
| Voir | Disponible | 152 724€ | C508 | Appt. | Studio | 18.6m2 | 5ème | Disponible | 152 724€ | Voir |
| Voir | Disponible | 152 724€ | C507 | Appt. | Studio | 18.6m2 | 5ème | Disponible | 152 724€ | Voir |
| Voir | Disponible | 152 724€ | C506 | Appt. | Studio | 18.6m2 | 5ème | Disponible | 152 724€ | Voir |
| Voir | Disponible | 152 724€ | C505 | Appt. | Studio | 18.6m2 | 5ème | Disponible | 152 724€ | Voir |
| Voir | Disponible | 152 724€ | C504 | Appt. | Studio | 18.6m2 | 5ème | Disponible | 152 724€ | Voir |
| Voir | Disponible | 152 724€ | C503 | Appt. | Studio | 18.6m2 | 5ème | Disponible | 152 724€ | Voir |
| Voir | Disponible | 152 724€ | C412 | Appt. | Studio | 18.7m2 | 4ème | Disponible | 152 724€ | Voir |
| Voir | Disponible | 152 724€ | C325 | Appt. | Studio | 18.6m2 | 3ème | Disponible | 152 724€ | Voir |
| Voir | Disponible | 152 724€ | C324 | Appt. | Studio | 18.6m2 | 3ème | Disponible | 152 724€ | Voir |
| Voir | Disponible | 152 724€ | C323 | Appt. | Studio | 18.6m2 | 3ème | Disponible | 152 724€ | Voir |
| Voir | Disponible | 153 348€ | C609 | Appt. | Studio | 18.6m2 | 6ème | Disponible | 153 348€ | Voir |
| Voir | Disponible | 154 284€ | C707 | Appt. | Studio | 18.6m2 | 7ème | Disponible | 154 284€ | Voir |
| Voir | Disponible | 154 284€ | C706 | Appt. | Studio | 18.6m2 | 7ème | Disponible | 154 284€ | Voir |
| Voir | Disponible | 154 284€ | C705 | Appt. | Studio | 18.6m2 | 7ème | Disponible | 154 284€ | Voir |
| Voir | Disponible | 154 284€ | C704 | Appt. | Studio | 18.6m2 | 7ème | Disponible | 154 284€ | Voir |
| Voir | Disponible | 154 284€ | C703 | Appt. | Studio | 18.6m2 | 7ème | Disponible | 154 284€ | Voir |
| Voir | Disponible | 154 284€ | C612 | Appt. | Studio | 18.7m2 | 6ème | Disponible | 154 284€ | Voir |
| Voir | Disponible | 154 284€ | C524 | Appt. | Studio | 18.6m2 | 5ème | Disponible | 154 284€ | Voir |
| Voir | Disponible | 155 532€ | C920 | Appt. | Studio | 18.4m2 | 9ème | Disponible | 155 532€ | Voir |
| Voir | Disponible | 155 844€ | C725 | Appt. | Studio | 18.6m2 | 7ème | Disponible | 155 844€ | Voir |
| Voir | Disponible | 155 844€ | C724 | Appt. | Studio | 18.6m2 | 7ème | Disponible | 155 844€ | Voir |
| Voir | Disponible | 155 844€ | C723 | Appt. | Studio | 18.6m2 | 7ème | Disponible | 155 844€ | Voir |
| Voir | Disponible | 155 844€ | C722 | Appt. | Studio | 18.6m2 | 7ème | Disponible | 155 844€ | Voir |
| Voir | Disponible | 157 092€ | C921 | Appt. | Studio | 18.6m2 | 9ème | Disponible | 157 092€ | Voir |
| Voir | Disponible | 157 092€ | C919 | Appt. | Studio | 18.6m2 | 9ème | Disponible | 157 092€ | Voir |
| Voir | Disponible | 157 092€ | C918 | Appt. | Studio | 18.6m2 | 9ème | Disponible | 157 092€ | Voir |
| Voir | Disponible | 157 092€ | C917 | Appt. | Studio | 18.6m2 | 9ème | Disponible | 157 092€ | Voir |
| Voir | Disponible | 157 092€ | C916 | Appt. | Studio | 18.6m2 | 9ème | Disponible | 157 092€ | Voir |
| Voir | Disponible | 157 092€ | C915 | Appt. | Studio | 18.6m2 | 9ème | Disponible | 157 092€ | Voir |
| Voir | Disponible | 157 092€ | C902 | Appt. | Studio | 18.6m2 | 9ème | Disponible | 157 092€ | Voir |
| Voir | Disponible | 157 092€ | C901 | Appt. | Studio | 18.6m2 | 9ème | Disponible | 157 092€ | Voir |
| Voir | Disponible | 157 716€ | C1211 | Appt. | Studio | 18.6m2 | 12ème | Disponible | 157 716€ | Voir |
| Voir | Disponible | 157 716€ | C1208 | Appt. | Studio | 18.6m2 | 12ème | Disponible | 157 716€ | Voir |
| Voir | Disponible | 157 716€ | C1207 | Appt. | Studio | 18.6m2 | 12ème | Disponible | 157 716€ | Voir |
| Voir | Disponible | 157 716€ | C1206 | Appt. | Studio | 18.6m2 | 12ème | Disponible | 157 716€ | Voir |
| Voir | Disponible | 157 716€ | C1205 | Appt. | Studio | 18.6m2 | 12ème | Disponible | 157 716€ | Voir |
| Voir | Disponible | 157 716€ | C127 | Appt. | Studio | 19.8m2 | 1er | Disponible | 157 716€ | Voir |
| Voir | Disponible | 158 652€ | C1212 | Appt. | Studio | 18.7m2 | 12ème | Disponible | 158 652€ | Voir |
| Voir | Disponible | 158 652€ | C1123 | Appt. | Studio | 18.6m2 | 11ème | Disponible | 158 652€ | Voir |
| Voir | Disponible | 158 652€ | C1122 | Appt. | Studio | 18.6m2 | 11ème | Disponible | 158 652€ | Voir |
| Voir | Disponible | 158 652€ | C1119 | Appt. | Studio | 18.6m2 | 11ème | Disponible | 158 652€ | Voir |
| Voir | Disponible | 158 652€ | C1116 | Appt. | Studio | 18.6m2 | 11ème | Disponible | 158 652€ | Voir |
| Voir | Disponible | 158 652€ | C1115 | Appt. | Studio | 18.6m2 | 11ème | Disponible | 158 652€ | Voir |
| Voir | Disponible | 158 652€ | C1102 | Appt. | Studio | 18.6m2 | 11ème | Disponible | 158 652€ | Voir |
| Voir | Disponible | 158 652€ | C1101 | Appt. | Studio | 18.6m2 | 11ème | Disponible | 158 652€ | Voir |
| Voir | Disponible | 159 276€ | C327 | Appt. | Studio | 19.8m2 | 3ème | Disponible | 159 276€ | Voir |
| Voir | Disponible | 159 588€ | C1312 | Appt. | Studio | 18.7m2 | 13ème | Disponible | 159 588€ | Voir |
| Voir | Disponible | 160 212€ | C1323 | Appt. | Studio | 18.6m2 | 13ème | Disponible | 160 212€ | Voir |
| Voir | Disponible | 160 212€ | C1321 | Appt. | Studio | 18.6m2 | 13ème | Disponible | 160 212€ | Voir |
| Voir | Disponible | 160 212€ | C1319 | Appt. | Studio | 18.6m2 | 13ème | Disponible | 160 212€ | Voir |
| Voir | Disponible | 160 212€ | C1318 | Appt. | Studio | 18.6m2 | 13ème | Disponible | 160 212€ | Voir |
| Voir | Disponible | 160 212€ | C1316 | Appt. | Studio | 18.6m2 | 13ème | Disponible | 160 212€ | Voir |
| Voir | Disponible | 160 212€ | C1315 | Appt. | Studio | 18.6m2 | 13ème | Disponible | 160 212€ | Voir |
| Voir | Disponible | 160 212€ | C1302 | Appt. | Studio | 18.6m2 | 13ème | Disponible | 160 212€ | Voir |
| Voir | Disponible | 160 212€ | C1301 | Appt. | Studio | 18.6m2 | 13ème | Disponible | 160 212€ | Voir |
| Voir | Disponible | 162 384€ | C727 | Appt. | Studio | 19.8m2 | 7ème | Disponible | 162 384€ | Voir |
| Voir | Disponible | 164 880€ | C213 | Appt. | Studio | 20.4m2 | 2ème | Disponible | 164 880€ | Voir |
| Voir | Disponible | 168 936€ | C102 | Appt. | Studio | 21.2m2 | 1er | Disponible | 168 936€ | Voir |
| Voir | Disponible | 171 432€ | C1013 | Appt. | Studio | 20.4m2 | 10ème | Disponible | 171 432€ | Voir |
| Voir | Disponible | 172 992€ | C1213 | Appt. | Studio | 20.4m2 | 12ème | Disponible | 172 992€ | Voir |
| Voir | Disponible | 173 928€ | C702 | Appt. | Studio | 21.2m2 | 7ème | Disponible | 173 928€ | Voir |
| Voir | Disponible | 188 880€ | C1103 | Appt. | Studio | 21.9m2 | 11ème | Disponible | 188 880€ | Voir |
| Voir | Disponible | 194 184€ | C1204 | Appt. | Studio | 24.9m2 | 12ème | Disponible | 194 184€ | Voir |
| Voir | Disponible | 209 772€ | C214 | Appt. | Studio | 30.8m2 | 2ème | Disponible | 209 772€ | Voir |
| Voir | Disponible | 211 944€ | C414 | Appt. | Studio | 30.8m2 | 4ème | Disponible | 211 944€ | Voir |
| Voir | Disponible | 214 128€ | C614 | Appt. | Studio | 30.8m2 | 6ème | Disponible | 214 128€ | Voir |
| Voir | Disponible | 218 184€ | C1014 | Appt. | Studio | 30.8m2 | 10ème | Disponible | 218 184€ | Voir |
| Voir | Disponible | 220 368€ | C1214 | Appt. | Studio | 30.8m2 | 12ème | Disponible | 220 368€ | Voir |
| Voir | Disponible | 221 148€ | C1314 | Appt. | Studio | 30.8m2 | 13ème | Disponible | 221 148€ | Voir |
| Voir | Disponible | 153 348€ | C611 | Appt. | Studio | 18.6m2 | 6ème | Disponible | 153 348€ | Voir |
| Voir | Disponible | 156 468€ | C1006 | Appt. | Studio | 18.6m2 | 10ème | Disponible | 156 468€ | Voir |