Prix
158 652€
Type
Appt. au 11ème
Pièces
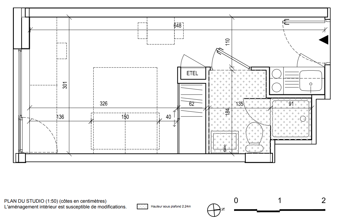
Studio
Surface
18.6 m²
Exposition
Sud
Ville
Rennes (35000)
Livraison
2ème trimestre 2027
Informations
01 81 80 39 10

Présentation du programme "Campus Créatif 5"

Investissez à Rennes, une ville qui offre un cadre de vie exceptionnelVille d’histoire et d’innovation : labellisée Ville d’Art et d’Histoire, Rennes allie un riche patrimoine médiéval (maisons à colombages, centre historique) à un développement urbain moderne et durable.De nombreux espaces verts tels que le parc Thabor, un des plus beaux de France, et les berges de la Vilaine pour les balades et activités sportives.Une vie culturelle riche avec des théâtres, musées, festivals, et centres artistiques.Rennes est régulièrement citée parmi les villes les plus agréables à vivre grâce à son accessibilité, son ambiance conviviale et son équilibre entre nature et urbanisme. Rennes, une ville étudiante et attractiveRennes, ville universitaire française avec 70 000 étudiants représentant 25% de la population, est une destination idéale pour un investissement locatif étudiant.Pôle technologique et d’innovation, Rennes bénéficie d’un dynamisme économique qui attire étudiants, familles et jeunes actifs.Un marché locatif en forte demande : la combinaison d’une population étudiante croissante et d’une offre de logements moderne et adaptée assure un taux de remplissage optimal. Commodités et transportsLa résidence se situe dans un quartier prisé, à quelques minutes à pied du centre historique et des grands espaces verts comme le parc Thabor.À proximité immédiate des commerces de quartier, des centres commerciaux et des nombreux restaurants et cafés qui animent la ville.Réseau du bus STAR et lignes A et B du métro facilement accessibles à pied et permettant de se rendre rapidement dans les principaux quartiers et périphéries de Rennes. Focus prestations/résidenceDes appartements clé en main : entièrement équipés pour un confort optimal (kitchenette, salle d’eau aménagée, espace bureau, rangements et télévision).Des espaces communs de qualité : cafétéria, salles de travail, salle de fitness, rooftop et espaces verts.Une conception éco-responsable : toit végétalisé pour favoriser la biodiversité, connexion au chauffage urbain pour réduire l’empreinte carbone et des panneaux photovoltaïques pour une gestion énergétique durable. Le + du programmeUne localisation stratégique : située dans le quartier prisé de Solférino, à proximité immédiate des écoles ESMA et CinéCréatis, offrant un environnement idéal pour les étudiants. Découvrez la vidéo du programme ici

Autres logements Studio du programme "Campus Créatif 5"

Disponibilité Prix Genre Pièces Surface Étage
Voir
Disponible
149 616€ Appt. Studio 18.6m2 1er
Voir
Disponible
151 164€ Appt. Studio 18.6m2 3ème
Voir
Disponible
151 164€ Appt. Studio 18.6m2 3ème
Voir
Disponible
151 788€ Appt. Studio 18.6m2 4ème
Voir
Disponible
152 100€ Appt. Studio 18.6m2 2ème
Voir
Disponible
152 100€ Appt. Studio 18.6m2 2ème
Voir
Disponible
152 100€ Appt. Studio 18.6m2 2ème
Voir
Disponible
152 724€ Appt. Studio 18.6m2 5ème
Voir
Disponible
152 724€ Appt. Studio 18.6m2 5ème
Voir
Disponible
152 724€ Appt. Studio 18.6m2 5ème
Voir
Disponible
152 724€ Appt. Studio 18.6m2 5ème
Voir
Disponible
152 724€ Appt. Studio 18.6m2 5ème
Voir
Disponible
152 724€ Appt. Studio 18.6m2 5ème
Voir
Disponible
152 724€ Appt. Studio 18.7m2 4ème
Voir
Disponible
152 724€ Appt. Studio 18.6m2 3ème
Voir
Disponible
153 348€ Appt. Studio 18.6m2 6ème
Voir
Disponible
154 284€ Appt. Studio 18.6m2 7ème
Voir
Disponible
154 284€ Appt. Studio 18.6m2 7ème
Voir
Disponible
154 284€ Appt. Studio 18.6m2 7ème
Voir
Disponible
154 284€ Appt. Studio 18.6m2 7ème
Voir
Disponible
154 284€ Appt. Studio 18.6m2 7ème
Voir
Disponible
154 284€ Appt. Studio 18.7m2 6ème
Voir
Disponible
154 284€ Appt. Studio 18.6m2 5ème
Voir
Disponible
155 532€ Appt. Studio 18.4m2 9ème
Voir
Disponible
155 844€ Appt. Studio 18.6m2 7ème
Voir
Disponible
155 844€ Appt. Studio 18.6m2 7ème
Voir
Disponible
155 844€ Appt. Studio 18.6m2 7ème
Voir
Disponible
155 844€ Appt. Studio 18.6m2 7ème
Voir
Disponible
157 092€ Appt. Studio 18.6m2 9ème
Voir
Disponible
157 092€ Appt. Studio 18.6m2 9ème
Voir
Disponible
157 092€ Appt. Studio 18.6m2 9ème
Voir
Disponible
157 092€ Appt. Studio 18.6m2 9ème
Voir
Disponible
157 092€ Appt. Studio 18.6m2 9ème
Voir
Disponible
157 092€ Appt. Studio 18.6m2 9ème
Voir
Disponible
157 092€ Appt. Studio 18.6m2 9ème
Voir
Disponible
157 092€ Appt. Studio 18.6m2 9ème
Voir
Disponible
157 716€ Appt. Studio 18.6m2 12ème
Voir
Disponible
157 716€ Appt. Studio 18.6m2 12ème
Voir
Disponible
157 716€ Appt. Studio 18.6m2 12ème
Voir
Disponible
157 716€ Appt. Studio 18.6m2 12ème
Voir
Disponible
157 716€ Appt. Studio 18.6m2 12ème
Voir
Disponible
157 716€ Appt. Studio 19.8m2 1er
Voir
Disponible
158 652€ Appt. Studio 18.7m2 12ème
Voir
Disponible
158 652€ Appt. Studio 18.6m2 11ème
Voir
Disponible
158 652€ Appt. Studio 18.6m2 11ème
Voir
Disponible
158 652€ Appt. Studio 18.6m2 11ème
Voir
Disponible
158 652€ Appt. Studio 18.6m2 11ème
Voir
Disponible
158 652€ Appt. Studio 18.6m2 11ème
Voir
Disponible
158 652€ Appt. Studio 18.6m2 11ème
Voir
Disponible
158 652€ Appt. Studio 18.6m2 11ème
Voir
Disponible
159 276€ Appt. Studio 19.8m2 3ème
Voir
Disponible
159 588€ Appt. Studio 18.7m2 13ème
Voir
Disponible
160 212€ Appt. Studio 18.6m2 13ème
Voir
Disponible
160 212€ Appt. Studio 18.6m2 13ème
Voir
Disponible
160 212€ Appt. Studio 18.6m2 13ème
Voir
Disponible
160 212€ Appt. Studio 18.6m2 13ème
Voir
Disponible
160 212€ Appt. Studio 18.6m2 13ème
Voir
Disponible
160 212€ Appt. Studio 18.6m2 13ème
Voir
Disponible
160 212€ Appt. Studio 18.6m2 13ème
Voir
Disponible
160 212€ Appt. Studio 18.6m2 13ème
Voir
Disponible
162 384€ Appt. Studio 19.8m2 7ème
Voir
Disponible
164 880€ Appt. Studio 20.4m2 2ème
Voir
Disponible
168 936€ Appt. Studio 21.2m2 1er
Voir
Disponible
171 432€ Appt. Studio 20.4m2 10ème
Voir
Disponible
172 992€ Appt. Studio 20.4m2 12ème
Voir
Disponible
173 928€ Appt. Studio 21.2m2 7ème
Voir
Disponible
188 880€ Appt. Studio 21.9m2 11ème
Voir
Disponible
194 184€ Appt. Studio 24.9m2 12ème
Voir
Disponible
209 772€ Appt. Studio 30.8m2 2ème
Voir
Disponible
211 944€ Appt. Studio 30.8m2 4ème
Voir
Disponible
214 128€ Appt. Studio 30.8m2 6ème
Voir
Disponible
218 184€ Appt. Studio 30.8m2 10ème
Voir
Disponible
220 368€ Appt. Studio 30.8m2 12ème
Voir
Disponible
221 148€ Appt. Studio 30.8m2 13ème
Voir
Disponible
153 348€ Appt. Studio 18.6m2 6ème
Voir
Disponible
156 468€ Appt. Studio 18.6m2 10ème