Prix
720 000€
Type
Appt. au 0-RDC
Pièces
T4
Surface
130.47 m²
Exposition
-
Ville
Saint-Raphaël (83700)
Livraison
2ème trimestre 2023
Informations
01 81 80 39 10

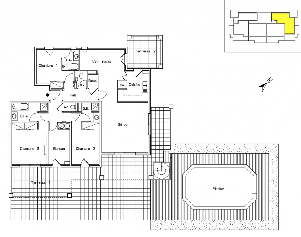
Présentation du programme "Bel'Horizon"

Dans une résidence de grand standing nichée sur l'une des plus belles collines de Saint-Raphaël, venez découvrir ce magnifique 5 Pièces de 130m² rare et atypique. Cet appartement dispose de 3 chambres et d'un bureau, chacune des chambres possède sa propre salle de bain. La cuisine, entièrement équipée avec des prestations de qualité, s'ouvre sur une salle à manger. Le séjour avec ses 2 grandes baies vitrées coulissantes vous permet d'accéder à une belle terrasse donnant sur un vaste jardin de presque 1.000m² avec sa piscine privative. Un garage en sous-sol avec accès privatif complète ce bien d'exception.

Autres logements T4 du programme "Bel'Horizon"

Disponibilité Prix Genre Pièces Surface Étage
Voir
Disponible
890 000€ Appt. T4 154.9m2 3ème