178 000€
Appt. au 0-RDC
T2
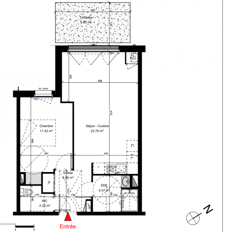
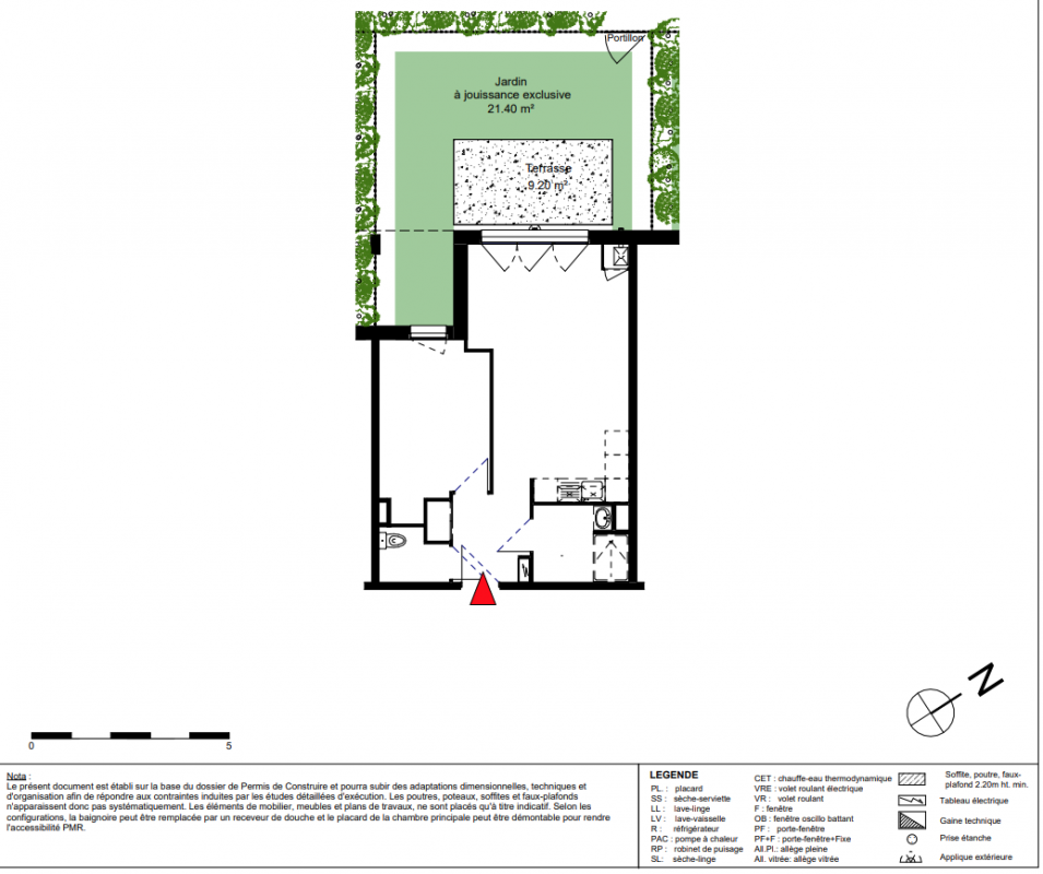
46.67 m²
-
La Garnache (85710)
1er trimestre 2024
01 81 80 39 10
Présentation du programme "LE HAMEAU DU GENÊT"
Un écoquartier intimiste en cœur de bourg.Découvrez votre future résidence profitant d’une situation exceptionnelle en cœur de bourg, offrant une adresse proche de tout, pour un quotidien simplifié.Havre de verdure et d’intimité, le Hameau du Genêt est composé de 29 appartements du T2 au T3 et de 16 maisons du T4 au T5 avec jardin privatif engazonné. Dans un environnement rare, la résidence offre de nombreux espaces verts et cheminements piétons et vélos permettant une circulation douce jusqu’au centre-bourg.Vivre en harmonie dans des espaces pensés pour votre bien-vivre. Pour répondre aux besoins de tous, les maisons bénéficient de chambres au rez-de-chaussée, et les appartements d’un ascenseur, assurant ainsi une accessibilité optimale.En mettant l’accent sur l’efficacité énergétique, toutes les habitations sont certifiées basse consommation, intégrant une pompe à chaleur double service pour une utilisation responsable des ressources.Vivre dedans comme dehors : Les appartements se distinguent par leurs terrasses spacieuses et les maisons par des jardins aménagés et végétalisés, invitant à profiter des douces journées en plein air.Nous avons constamment pensé à la qualité de vie des futurs résidents. Conçus selon les normes de la réglementation environnementale 2020, ces logements ont été imaginés pour vous assurer un maximum de confort et de luminosité.Du T2 au T5 : A travers une architecture traditionnelle sublimée par une note contemporaine, les logements proposés vont du T2 au T5, proposant des prestations de qualité et un confort intérieur au cœur de nos préoccupations. Elégance et qualité sont les maître-mots du Hameau du Genêt.Cœurs d’îlot : L’architecte a proposé de nombreux cœurs d’îlots paysagers, créant de véritables intimités, permettant de profiter au calme de l’effervescence du centre-bourg. Nature et calme : La résidence a été conçue autour des nombreux arbres conservés et le site bénéficie d’un dénivelé naturel permettant de créer partout de l’intimité et du calme.
Autres logements T2 du programme "LE HAMEAU DU GENÊT"
| Disponibilité | Prix | No | Genre | Pièces | Surface | Étage | Disponibilité | Prix | ||
|---|---|---|---|---|---|---|---|---|---|---|
| Voir | Disponible | 175 000€ | C001 | Appt. | T2 | 46.72m2 | 0-RDC | Disponible | 175 000€ | Voir |
| Voir | Disponible | 185 000€ | C005 | Appt. | T2 | 49.52m2 | 0-RDC | Disponible | 185 000€ | Voir |
| Voir | Disponible | 169 000€ | C006 | Appt. | T2 | 45.17m2 | 0-RDC | Disponible | 169 000€ | Voir |
| Voir | Disponible | 172 000€ | C007 | Appt. | T2 | 43.24m2 | 0-RDC | Disponible | 172 000€ | Voir |
| Voir | Disponible | 172 000€ | C008 | Appt. | T2 | 43.13m2 | 0-RDC | Disponible | 172 000€ | Voir |
| Voir | Disponible | 172 000€ | C011 | Appt. | T2 | 43.13m2 | 0-RDC | Disponible | 172 000€ | Voir |
| Voir | Disponible | 165 000€ | C012 | Appt. | T2 | 41.82m2 | 0-RDC | Disponible | 165 000€ | Voir |
| Voir | Disponible | 169 000€ | C013 | Appt. | T2 | 43.97m2 | 0-RDC | Disponible | 169 000€ | Voir |
| Voir | Disponible | 182 000€ | C101 | Appt. | T2 | 46.72m2 | 1er | Disponible | 182 000€ | Voir |
| Voir | Disponible | 182 000€ | C104 | Appt. | T2 | 46.67m2 | 1er | Disponible | 182 000€ | Voir |
| Voir | Disponible | 187 000€ | C105 | Appt. | T2 | 49.53m2 | 1er | Disponible | 187 000€ | Voir |
| Voir | Disponible | 172 000€ | C106 | Appt. | T2 | 45.07m2 | 1er | Disponible | 172 000€ | Voir |
| Voir | Disponible | 168 000€ | C107 | Appt. | T2 | 42.71m2 | 1er | Disponible | 168 000€ | Voir |
| Voir | Disponible | 167 000€ | C108 | Appt. | T2 | 42.64m2 | 1er | Disponible | 167 000€ | Voir |
| Voir | Disponible | 167 000€ | C111 | Appt. | T2 | 42.64m2 | 1er | Disponible | 167 000€ | Voir |
| Voir | Disponible | 162 000€ | C112 | Appt. | T2 | 41.27m2 | 1er | Disponible | 162 000€ | Voir |
| Voir | Disponible | 169 000€ | C113 | Appt. | T2 | 44.02m2 | 1er | Disponible | 169 000€ | Voir |
| Voir | Disponible | 157 000€ | C115 | Appt. | T2 | 39.5m2 | 1er | Disponible | 157 000€ | Voir |

