Ce lot n’est plus disponible chez VIANOVA ou est vendu.

Vous pouvez revenir dans 24h pour vérifier le stock à jour ou contacter un conseiller Vianova pour vérifier le stock en direct.
Vous pouvez également continuer votre recherche sur notre site « ici ».

Prix
247 000€  (TVA 20%)
226 417€  (TVA 10%)
Type
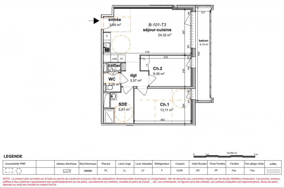
Appt. au 1er
Pièces
T3
Surface
62.56 m²
Exposition
-
Ville
Angers (49000)
Livraison
4ème trimestre 2025
Informations
01 81 80 39 10

Présentation du programme "BoTerra"

Ici, habitat, petite enfance et artisanat cohabitent en totale harmonie. La résidence BO TERRA fait la part belle à la mixité des usages avec ses 2 îlots qui accueillent chacun 42 et 26 appartements du studio au 4 pièces, une crèche de 350m² et des locaux dédiés à l'artisanat. Les appartements bénéficient soit d'un balcon, d'une loggia, d'une terrasse ou d'un jardin privatif. Cet ensemble immobilier a été pensé dans un cadre particulièrement verdoyant bénéficiant de potager partagé et d'un coeur d'îlot arboré. Imaginé comme un véritable parc habité, cet écoquartier nouvelle génération met à l'honneur la nature dans tous ses états et offre à Angers une seconde jeunesse !

Autres logements T3 du programme "BoTerra"

Disponibilité Prix Genre Pièces Surface Étage
Voir
Optionné
251 000€ Appt. T3 65.11m2 0-RDC
Voir
Disponible
253 000€ Appt. T3 66.09m2 0-RDC