245 000€ (TVA 20%)
215 396€ (TVA 5.5%)
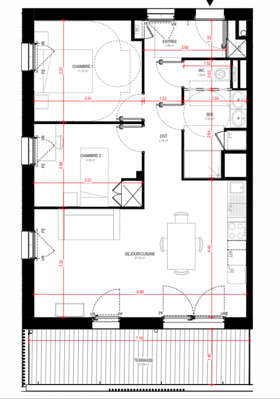
Appt. au 0-RDC
T3
63.11 m²
Sud-Ouest
Saint-Nazaire (44600)
1er trimestre 2028
01 81 80 39 10
Présentation du programme "Villas Conti"
Accéder à la maquette 3D de Villas Conti Située Boulevard Emile Broodcoorens, Villas Conti est composée de deux bâtiments à taille humaine, regroupant 46 appartements du 2 au 4 pièces. L’architecture contemporaine, sobre et élégante, s’intègre parfaitement dans son environnement urbain grâce à des matériaux de qualité et une réflexion paysagère favorisant la biodiversité. Les logements offrent des volumes généreux, une belle luminosité naturelle (triple orientation ou traversants), et des espaces extérieurs variés : balcons, loggias, terrasses ou jardins privatifs.Proximité immédiate de la mer : plages accessibles en moins de 10 min à vélo De nombreuses aménités aux alentours (école primaire, piscine, gymnase, commerces, bibliothèque) Quartier en pleine évolution, à proximité de l’université et du centre commercial Océanis Mobilité facilitée : lignes de bus Hélyce, pistes cyclables, gare TER-TGV à 5,2 km Architecture contemporaine et intégrée à l’environnement Éligibilité TVA réduite 5,5 %, PTZ LLI avec TVA 10%Espaces extérieurs : balcon, loggia, terrasse ou jardin privatif Locaux vélos en rez-de-chaussée et en sous-sol Parking souterrainPerformance énergétique conforme à la RE 2020À pied : École maternelle, boulangerie, pharmacie, supermarché, marché, gymnase, bibliothèque et piscine à 5 minCentre commercial Océanis à 10 minLigne Hélyce 1 à 8 min, Hélyce 2 à 12 min (dès fin 2025)En train : Gare de Saint-Nazaire à 5,2 kmNantes en 34 minParis Montparnasse en 2h58En voiture : Centre-ville de Saint-Nazaire à 4 kmNantes à 63 km via N171/N165En avion : Aéroport Nantes Atlantique à 66 km
Autres logements T3 du programme "Villas Conti"
| Disponibilité | Prix | No | Genre | Pièces | Surface | Étage | Disponibilité | Prix | ||
|---|---|---|---|---|---|---|---|---|---|---|
| Voir | Disponible | 247 000€ | A101 | Appt. | T3 | 63.43m2 | 1er | Disponible | 247 000€ | Voir |
| Voir | Disponible | 252 000€ | A106 | Appt. | T3 | 62.65m2 | 1er | Disponible | 252 000€ | Voir |
| Voir | Disponible | 252 000€ | A201 | Appt. | T3 | 63.43m2 | 2ème | Disponible | 252 000€ | Voir |
| Voir | Disponible | 250 000€ | A206 | Appt. | T3 | 62.65m2 | 2ème | Disponible | 250 000€ | Voir |
| Voir | Disponible | 252 000€ | A301 | Appt. | T3 | 59.82m2 | 3ème | Disponible | 252 000€ | Voir |
| Voir | Disponible | 229 000€ | A305 | Appt. | T3 | 55.34m2 | 3ème | Disponible | 229 000€ | Voir |
| Voir | Disponible | 255 000€ | A401 | Appt. | T3 | 59.82m2 | 4ème | Disponible | 255 000€ | Voir |
| Voir | Disponible | 263 000€ | A402 | Appt. | T3 | 62.27m2 | 4ème | Disponible | 263 000€ | Voir |
| Voir | Disponible | 265 000€ | A403 | Appt. | T3 | 62.19m2 | 4ème | Disponible | 265 000€ | Voir |
| Voir | Disponible | 234 000€ | A404 | Appt. | T3 | 55.34m2 | 4ème | Disponible | 234 000€ | Voir |
| Voir | Disponible | 259 000€ | A501 | Appt. | T3 | 59.72m2 | 5ème | Disponible | 259 000€ | Voir |
| Voir | Disponible | 267 000€ | A502 | Appt. | T3 | 62.27m2 | 5ème | Disponible | 267 000€ | Voir |
| Voir | Disponible | 269 000€ | A503 | Appt. | T3 | 62.19m2 | 5ème | Disponible | 269 000€ | Voir |
| Voir | Disponible | 230 000€ | B004 | Appt. | T3 | 57.06m2 | 0-RDC | Disponible | 230 000€ | Voir |
| Voir | Disponible | 225 000€ | B005 | Appt. | T3 | 56.72m2 | 0-RDC | Disponible | 225 000€ | Voir |
| Voir | Disponible | 255 000€ | B101 | Appt. | T3 | 63.67m2 | 1er | Disponible | 255 000€ | Voir |
| Voir | Disponible | 255 000€ | B104 | Appt. | T3 | 63.11m2 | 1er | Disponible | 255 000€ | Voir |
| Voir | Disponible | 240 000€ | B105 | Appt. | T3 | 57.32m2 | 1er | Disponible | 240 000€ | Voir |
| Voir | Disponible | 234 000€ | B106 | Appt. | T3 | 56.72m2 | 1er | Disponible | 234 000€ | Voir |
| Voir | Disponible | 260 000€ | B201 | Appt. | T3 | 63.67m2 | 2ème | Disponible | 260 000€ | Voir |
| Voir | Disponible | 260 000€ | B204 | Appt. | T3 | 63.11m2 | 2ème | Disponible | 260 000€ | Voir |
| Voir | Disponible | 245 000€ | B205 | Appt. | T3 | 57.16m2 | 2ème | Disponible | 245 000€ | Voir |
| Voir | Disponible | 239 000€ | B206 | Appt. | T3 | 56.72m2 | 2ème | Disponible | 239 000€ | Voir |
| Voir | Disponible | 267 000€ | B301 | Appt. | T3 | 63.72m2 | 3ème | Disponible | 267 000€ | Voir |
| Voir | Disponible | 267 000€ | B303 | Appt. | T3 | 65.49m2 | 3ème | Disponible | 267 000€ | Voir |