145 000€
Appt. au 1er
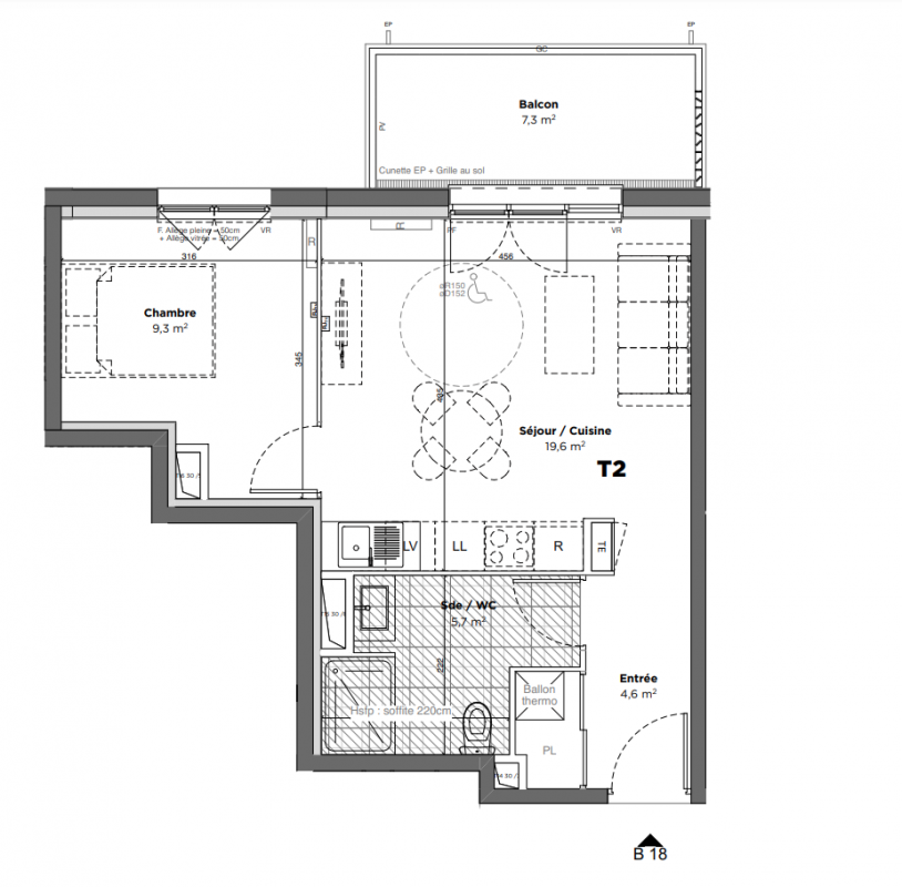
T2
39.2 m²
Nord
Saint-Sulpice (81370)
4ème trimestre 2027
01 81 80 39 10
Présentation du programme "L'Écrin du Castela - La Nouvelle Arçonnerie"
LE PRINTEMPS DE L'IMMO : FRAIS DE NOTAIRE OFFERTS !*Venez nous rencontrer Place du Marché à Saint-Sulpice, du mardi au vendredi de 10h à 13h et de 14h à 18h30, ainsi que le samedi de 10h à 13h et de 14h à 16h.En plein centre-bourg, entre patrimoine historique et cadre de vie apaisé, découvrez L'Ecrin du Castela, ce nouveau programme immobilier neuf. Envie d’investir ? Cette résidence est éligible au nouveau dispositif d’investissement locatif JEANBRUN, pour constituer un patrimoine, réduire vos impôts et préparer votre retraite !
Cette résidence propose des appartements neufs du 2 au 4 pièces, soigneusement agencés et conçus pour offrir luminosité, confort et fonctionnalité. Chaque logement est prolongé par un balcon ou une grande terrasse, vous permettant de profiter pleinement de l’extérieur au quotidien.
L’Écrin du Castela bénéficie d’un emplacement central, à proximité immédiate de tous les commerces, écoles, services et infrastructures. L’architecture élégante et sobre, en harmonie avec le style local, s’intègre parfaitement dans le paysage de la ville. La gare TER de Saint-Sulpice est accessible à pied, permettant de rejoindre Toulouse en seulement 20 minutes, un atout majeur pour les actifs.
Pensée pour ceux qui vivent ici et aiment leur ville, cette résidence incarne un projet immobilier à taille humaine, parfait pour une résidence principale ou un investissement locatif de qualité dans une commune dynamique et bien desservie.*Frais de notaire offerts, offre valable pour les 3 prochains réservataires, sous conditions de la signature d'un contrat de réservation jusqu'au 31/05/2026 et à la réitération de l’acte authentique de vente dans les délais contractuels.
Autres logements T2 du programme "L'Écrin du Castela - La Nouvelle Arçonnerie"
| Disponibilité | Prix | No | Genre | Pièces | Surface | Étage | Disponibilité | Prix | ||
|---|---|---|---|---|---|---|---|---|---|---|
| Voir | Disponible | 153 500€ | B14 | Appt. | T2 | 42.4m2 | 1er | Disponible | 153 500€ | Voir |
| Voir | Disponible | 153 500€ | B17 | Appt. | T2 | 42.5m2 | 1er | Disponible | 153 500€ | Voir |
| Voir | Disponible | 154 000€ | B23 | Appt. | T2 | 42.5m2 | 2ème | Disponible | 154 000€ | Voir |
| Voir | Disponible | 150 000€ | B28 | Appt. | T2 | 39.2m2 | 2ème | Disponible | 150 000€ | Voir |