Prix
219 900€
Type
Appt. au 6ème
Pièces
T2
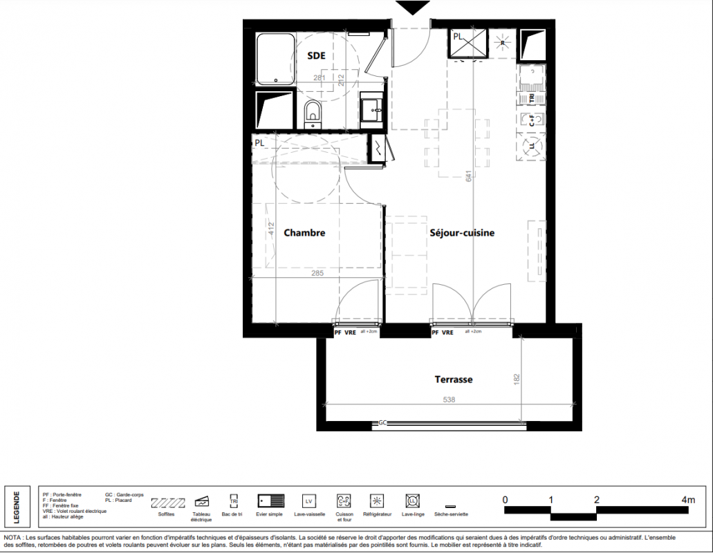
Surface
38.42 m²
Exposition
-
Ville
Toulouse (31000)
Livraison
4ème trimestre 2028
Informations
01 81 80 39 10

Présentation du programme "ESPRIT CARTOUCHERIE"

Programme immobilier neuf - Toulouse La Cartoucherie : Appartements avec vue panoramique sur Toulouse - Cible jeunes actifs et investisseurs. Localisation stratégique et dynamique de marché
Situé dans la ZAC de la Cartoucherie à Toulouse, avenue de Grande-Bretagne, le programme bénéficie d'un emplacement premium au sein d'un écoquartier reconnu pour sa forte attractivité résidentielle. À proximité immédiate de Saint-Cyprien et des berges de la Garonne, le secteur concentre commerces, équipements culturels, pôles tertiaires et infrastructures de transport.

Connexion optimale : métro, tramway, bus et accès rapide au périphérique permettant de rejoindre le centre-ville en moins de 15 minutes. Quartier à fort potentiel de valorisation, porté par la transformation urbaine et la montée en gamme de l'offre résidentielle.

Description de l'opération : Résidence contemporaine ouverte sur un parc urbain paysager d'environ 1 hectare. Architecture élancée avec hauteurs étagées favorisant les vues dégagées et la luminosité naturelle.
Appartements du T2 au T5, tous prolongés par des loggias spacieuses. Certains logements bénéficient de vues panoramiques sur Toulouse et, en étages élevés, jusqu'aux Pyrénées.
Typologies et cibles commerciales :
- T2 : jeunes actifs, primo-accédants solos, investisseurs locatifs.
- T3 : couples actifs, résidence principale.
- T4 et T5 en attique avec grandes terrasses (jusqu'à 70 m²) : clientèle familiale urbaine et CSP+.

Produit lisible, adaptable à la résidence principale comme à l'investissement locatif.

Arguments commerciaux clés :
- Emplacement recherché dans un écoquartier structurant de Toulouse.
- Vue dégagée et environnement paysager différenciant.
- Forte demande locative sur le secteur (proximité centre-ville et bassins d'emploi).
- Accessibilité transports immédiate.
- Quartier vivant : Halles de la Cartoucherie, Zénith, futur cinéma, commerces et services au pied de la résidence.

Dispositifs activables :
- Prêt à Taux Zéro (PTZ) sous conditions.
- Bail Réel Solidaire (BRS) pour une accession à prix maîtrisé.
- Investissement locatif possible en LMNP ou LLI selon profil et éligibilité.

Synthèse prescripteur : Produit adapté aux jeunes actifs urbains.
Marché locatif sécurisé par la centralité et les transports.
Quartier en valoris

Autres logements T2 du programme "ESPRIT CARTOUCHERIE"

Disponibilité Prix Genre Pièces Surface Étage
Voir
Disponible
199 900€ Appt. T2 38.5m2 2ème
Voir
Disponible
202 900€ Appt. T2 38.5m2 3ème
Voir
Disponible
209 900€ Appt. T2 38.5m2 4ème
Voir
Disponible
212 900€ Appt. T2 38.5m2 5ème
Voir
Disponible
214 900€ Appt. T2 38.42m2 5ème
Voir
Disponible
217 900€ Appt. T2 38.5m2 6ème
Voir
Disponible
220 900€ Appt. T2 38.5m2 7ème
Voir
Disponible
222 900€ Appt. T2 38.42m2 7ème
DO NOT CLICK