Prix
Type
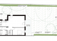
Maison au 0-RDC
Maison au 0-RDC
Pièces
T5
T5
Surface
100.01 m²
100.01 m²
Exposition
Ouest
Ouest
Ville
Villenave-d'Ornon (33140)
Villenave-d'Ornon (33140)
Livraison
2ème trimestre 2028
2ème trimestre 2028
Informations
01 81 80 39 10
01 81 80 39 10
Présentation du programme "Les Jardins Saint-Yves"
La résidence vous propose de vivre au vert en deuxième couronne de l'agglomération bordelaise. Le bus à deux pas vous connecte en 6 min à la gare et au Tram, et 10 min plus tard, vous êtes au coeur de la capitale girondine. Ce programme RE 2020 ajoute à ses atouts une rapidité de connexion avec la rocade, mais aussi un agréable jardin paysager central dédié à la détente.


