Ce lot n’est plus disponible chez VIANOVA ou est vendu.
Vous pouvez revenir dans 24h pour vérifier le stock à jour ou contacter un conseiller Vianova pour vérifier le stock en direct.
Vous pouvez également continuer votre recherche sur notre site « ici ».
472 800€
- €
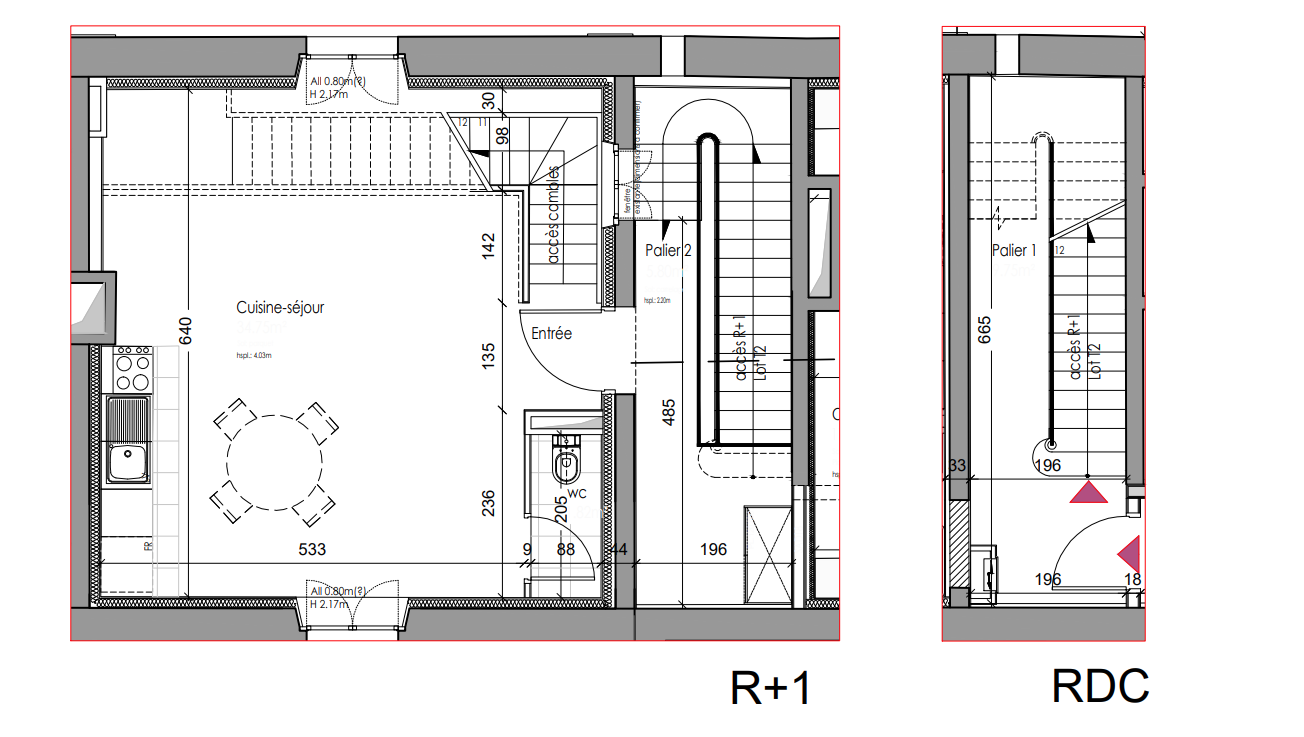
Appt. au 0-RDC
T2
76.66 m²
Sud
Mérignac (33700)
4ème trimestre 2027
01 81 80 39 10
Présentation du programme "CHATEAU BON AIR"
Mérignac est une commune de la banlieue Ouest bordelaise. Intégrée à l’aire urbaine de Bordeaux, elle profite de son attraction économique et touristique. Plusieurs grandes entreprises se sont implantées sur ce territoire attractif : Thales, Oxbow, Dassault, Cultura ou encore Cofinoga. Toutes sont séduites par le dynamisme et les perspectives de croissance de la deuxième ville de Gironde.
Idéalement situé à seulement 10 min de Bordeaux et proche de nombreuses commodités et d’écoles, le Château Bon Air se dresse à l’entrée du bois de Burck. Cette adresse verra ses richesses architecturales préservées. Le Château Bon Air accueillera 15 logements pour la majorité traversants. Sa variété de typologies offrira une réponse complète à la demande locative.
Autres logements T2 du programme "CHATEAU BON AIR"
| Disponibilité | Prix | No | Genre | Pièces | Surface | Étage | Disponibilité | Prix | ||
|---|---|---|---|---|---|---|---|---|---|---|
| Voir | Archivé | 462 600€ | 2-PK2 | Appt. | T2 | 43.31m2 | 0-RDC | Archivé Mais pas encore vendu 😉 | 462 600€ Prix foncier 52 200€ Prix travaux 410 400€ | Voir |
| Voir | Archivé | 471 900€ | 9-PK9 | Appt. | T2 | 53.22m2 | 0-RDC | Archivé | 471 900€ Prix foncier 62 300€ Prix travaux 409 600€ | Voir |
| Voir | Archivé | 387 800€ | 1b-Pk1 | Appt. | T2 | 37m2 | 0-RDC | Archivé | 387 800€ Prix foncier 45 300€ Prix travaux 342 500€ | Voir |

