Prix
840 000€
Type
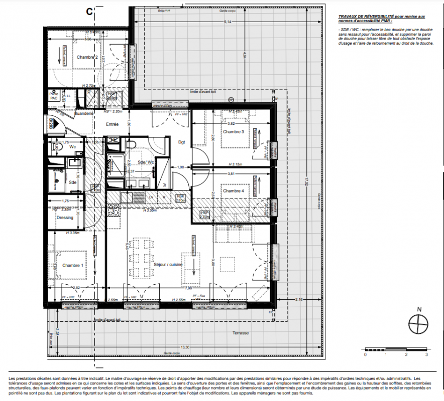
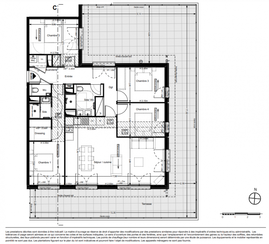
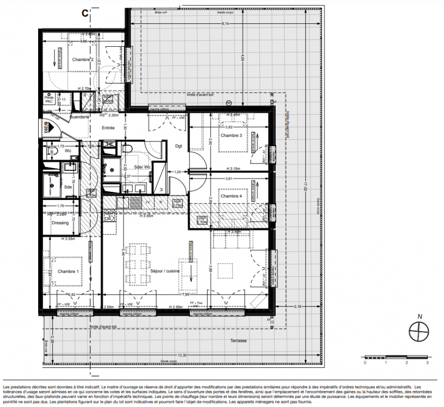
Appt. au 0-RDC
Pièces
T5
Surface
113.9 m²
Exposition
-
Ville
La Teste-de-Buch (33260)
Livraison
2ème trimestre 2027
Informations
01 81 80 39 10

Présentation du programme "ASSALIDA"

Programme neuf La Teste-de-Buch - 33260

Autres logements T5 du programme "ASSALIDA"

Disponibilité Prix Genre Pièces Surface Étage
Voir
Disponible
770 000€ Appt. T5 107.7m2 0-RDC
Voir
Disponible
780 000€ Appt. T5 108.4m2 0-RDC
DO NOT CLICK