Ce lot n’est plus disponible chez VIANOVA ou est vendu.

Vous pouvez revenir dans 24h pour vérifier le stock à jour ou contacter un conseiller Vianova pour vérifier le stock en direct.
Vous pouvez également continuer votre recherche sur notre site « ici ».

Prix
299 250€
Type
Appt. au 2ème
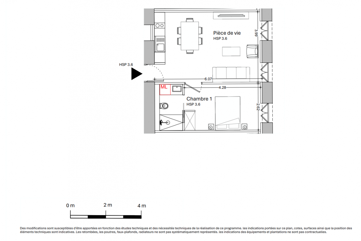
Pièces
T2
Surface
38.6 m²
Exposition
-
Ville
La Rochelle (17000)
Livraison
4ème trimestre 2027
Informations
01 81 80 39 10

Présentation du programme "LES JARDINS DE L'ORATOIRE"

Une rénovation haut de gamme :

Belle hauteur sous plafond
Finitions soignées
Ascenseurs
Jardin collectif paysager

Et pour certains appartements :

Double ou triple exposition
Terrasse ou jardin privatif
Stationnement en sous-sol

Sol :
Carrelage : possibilité de Carreaux 60x60 ou 100x100 ou 80x80 cm / marque Porcelanosa
Parquet bois contrecollé avec plinthes assortis, marque Porcelanosa gamme tréville / dimensions : 13x109,2cm
Revêtement muraux & sol de salle de bain : carreaux 33,3x100cm / marque Porcelanosa
Equipement de salle de bain :
Baignoire DURAVIT 180x80cm / rectangulaire en acrylique blanc, Gamme D-CODE.
Douche de tête Crometta E 240 1 JET HANSGROHE
Meuble Vasque Porcelanosa série SMART
Mitigeur de lavabo HANSGROHEAXOR 10001000 CHROMÉ
Douche à l’italienne avec caniveau EASYDRAIN
Sèche serviette Cala ACOVA, radiateur extra-plat Inox 300W ou 600W.
WC suspendu DURAVIT STARCK 3 RIMFREE
Equipement électriques :
Caches interrupteurs de la gamme Poudrée Céliane LEGRAND.
Portes intérieures iso planes avec huisseries bois ou métalliques, équipées de poignées au choix de l’architecte
Portes de placards coulissantes sur rails ou avec ouvrants à la française

Autres logements T2 du programme "LES JARDINS DE L'ORATOIRE"

Disponibilité Prix Genre Pièces Surface Étage
Voir
Archivé
292 500€ Appt. T2 37m2 1er
Voir
Archivé
297 920€ Appt. T2 39.1m2 1er
Voir
Archivé
349 000€ Appt. T2 45m2 1er
DO NOT CLICK