Prix
155 400€
Type
Appt. au 2ème
Pièces
-
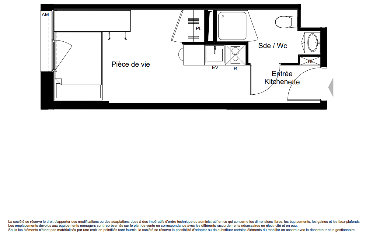
Surface
19.66 m²
Exposition
Ouest
Ville
La Rochelle (17000)
Livraison
2ème trimestre 2026
Informations
01 81 80 39 10

Présentation du programme "DOCK 54"

Située aux abords du port de plaisance de La Rochelle, la résidence DOCK 54 propose un nouveau lieu de vie innovant et convivial. Avec son architecture moderne, tout en transparence, la résidence se compose de 181 lots d'une pièce à la collocation de 5 personnes. Elle offre des espaces communs chaleureux, aux inspirations locales et qui font référence à la douceur de vivre de la ville. Entre rayures, couleurs pastel, esprit guinguette de plage et cabane de pêcheur, la résidence affirme son identité rocheloise. En plus des espaces communs traditionnels (espaces de détente, coworking, gaming, etc.), DOCK 54 se pare d’un rooftop avec piscine, salle de fitness et sauna.Enfin, la résidence accueillera un restaurant et un lieu de coworking privatifs.

Autres logements - du programme "DOCK 54"

Disponibilité Prix Genre Pièces Surface Étage
Voir
Disponible
162 360€ Appt. - 20.37m2 3ème
Voir
Disponible
158 160€ Appt. - 20.25m2 0-RDC