Prix
344 000€
Type
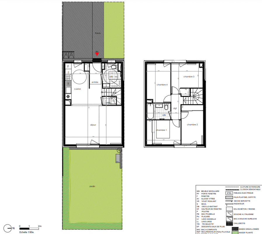
Maison au 0-RDC
Pièces
T5
Surface
91.66 m²
Exposition
-
Ville
Gargenville (78440)
Livraison
2ème trimestre 2025
Informations
01 81 80 39 10

Présentation du programme "Canopée"

Ce nouveau projet se situe dans la ZAC des Hauts de Rangiport à Gargenville, un nouveau quartier où se mêlent habitats collectifs et individuels à proximité de la place du marché et des commerces. A proximité immédiate de la résidence se trouvent une crèche, un groupe scolaire, et la gare de Gargenville. La résidence accueille 23 logements intermédiaires, de 2 ou 3 pièces parfois en duplex. Ils sont tous prolongés par une terrasse et profitent à minima d'une double orientation. 23 maisons individuelles de 3 à 5 pièces avec jardin prennent aussi place. Certaines bénéficient d'une toiture terrasse accessible. Tous les logements possèdent un cellier et 2 places de stationnement privatives. Ce projet possède un fort enjeu environnemental : récupération des eaux de pluie, compostage, production d'énergie renouvelable, construction bois en partie, label Biossourcé niveau 2, label E2C1, espaces verts conçus pour assurer des couloirs écologiques... Logements intermédiaires : 2 ou 3 pièces, certains sous forme de duplex Double orientation Terrasses orientées Sud Locaux vélo en coeur d'ilot Cellier et parking privatif pour tous Maisons individuelles : 3 à 5 pièces Jardin privatif, toiture terrasse accessible pour certaines Espace de rangement extérieur Cellier et places de stationnement Une résidence verte : Création d'une placette végétalisée invitant à la détente et aux échanges Récupération des eaux de pluie, compostage Production d'énergie renouvelable Construction bois en partie Plantation d'arbres et aménagements pour la faune locale

Autres logements T5 du programme "Canopée"

Pas de logements disponibles