Prix
271 000€  (TVA 20%)
248 417€  (TVA 10%)
Type
Appt. au 1er
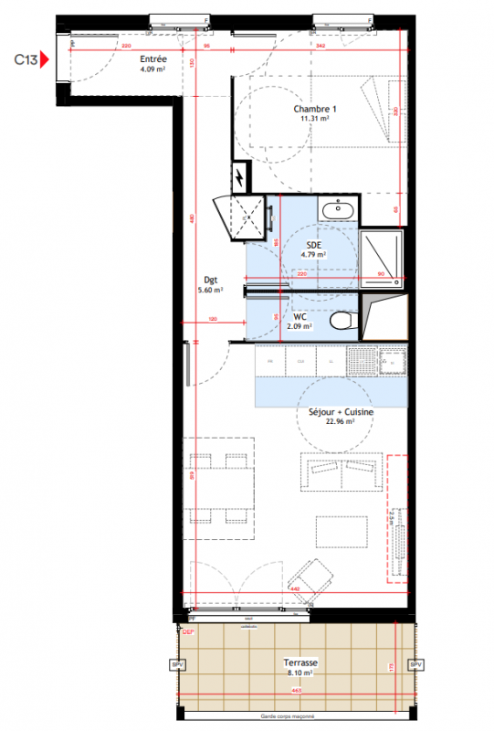
Pièces
T2
Surface
50.84 m²
Exposition
-
Ville
Orly (94310)
Livraison
2ème trimestre 2028
Informations
01 81 80 39 10

Présentation du programme "Mésange"

Dans la poursuite du succès commercial des résidences Barbara et Equilibre à Orly, découvrez la nouvelle résidence MESANGE, située dans le même quartier dynamique Parcs en Scène, alliant confort, durabilité et cadre de vie privilégié.

Cette nouvelle opération propose des appartements du studio au 5 pièces, pour un quotidien facilité. Chaque logement a été pensé pour répondre aux attentes de tous les styles de vie, que vous soyez investisseur ou à la recherche de votre résidence principale.

Au coeur de la résidence, profitez d'un jardin paysager convivial, véritable lieu de vie et de détente, accessible à tous les résidents.

Les + du programme :
- cadre de vie agréable
- proximité du métro 14 et du RER C
- Conforme à la RE2020 seuil 2025 : performances énergétiques avancées pour un confort optimal et des économies d'énergie.
- Labellisé BiodiverCity® : un projet respectueux de la biodiversité et de l'environnement.

Une localisation idéale dans un quartier en plein renouveau, à proximité des transports, écoles et commodités.

Autres logements T2 du programme "Mésange"

Disponibilité Prix Genre Pièces Surface Étage
Voir
Optionné
258 000€ Appt. T2 45.76m2 3ème
Voir
Disponible
277 000€ Appt. T2 51.4m2 2ème
DO NOT CLICK