273 900€
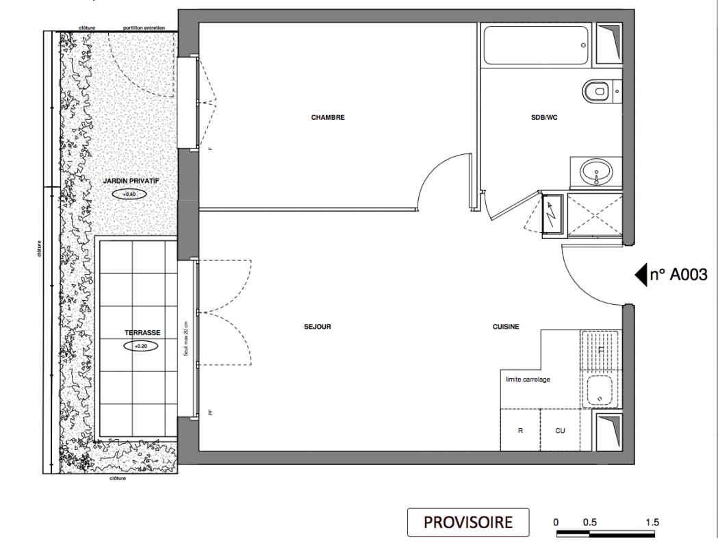
Appt. au 0-RDC
T2
41.44 m²
Sud-Ouest
L'Haÿ-les-Roses (94240)
4ème trimestre 2027
01 81 80 39 10
Présentation du programme "Programme neuf L'Haÿ-les-Roses (94240)"
Achetez votre appartement neuf à L'HAY-LES-ROSES ! Notre résidence profite d'une localisation idéale, en plein centre-ville, à quelques pas des principaux points d'intérêt de L'Haÿ-les-Roses. La mairie, le marché, le centre commercial ainsi que les commerces de proximité (pharmacies, boulangeries, etc...) sont accessibles en moins de 10 min* à pied. Les familles apprécieront la proximité immédiate des établissements scolaires, de l'école primaire au lycée, tous situés à moins de 1 km* en voiture. Pour favoriser les activités physiques, la ville dispose d'un complexe sportif composé de terrain de foot, de squash et dune salle de sport. Les amoureux de la nature pourront profiter quant à eux du Parc de la Roseraie, un véritable havre de paix pour les moments de détente ou de loisirs en plein air.L'Haÿ-les-Roses est parfaitement desservie par les transports en commun. Le prolongement récent de la ligne du métro 14 permet de rejoindre l'aéroport d'Orly en seulement 14 min* et le centre de Paris en 25 min*, offrant ainsi une connectivité optimale pour les actifs. De plus, les lignes de bus V2 et 172, situées à quelques pas de la résidence, facilitent les déplacements vers les villes voisines. Pour les trajets en voiture, les accès aux principaux axes routiers tels que l_A6B, l_A86 et la RN7 permettent de rejoindre rapidement les grandes zones d'activités parisiennes.Notre nouvelle résidence, à la ligne classique et élégante et aux matériaux nobles, propose des appartements allant du 2 au 4 pièces, conçus pour répondre aux exigences de confort et de praticité. Chaque logement bénéficie de beaux espaces de vie lumineux, avec des balcons, terrasses ou jardins privatifs prolongeant ainsi les espaces de vie. Pour faciliter le quotidien, la résidence dispose d'un parking en sous-sol et d'un local à vélos.Contactez vite un de nos conseillers pour découvrir tous nos logements et être parmi les premiers à choisir l'appartement de vos rêves à L'HAY-LES-ROSES !
Autres logements T2 du programme "Programme neuf L'Haÿ-les-Roses (94240)"
| Disponibilité | Prix | No | Genre | Pièces | Surface | Étage | Disponibilité | Prix | ||
|---|---|---|---|---|---|---|---|---|---|---|
| Voir | Disponible | 264 000€ | A001 | Appt. | T2 | 41m2 | 0-RDC | Disponible | 264 000€ | Voir |
| Voir | Disponible | 280 700€ | A103 | Appt. | T2 | 42.19m2 | 1er | Disponible | 280 700€ | Voir |
| Voir | Disponible | 267 000€ | A104 | Appt. | T2 | 40.12m2 | 1er | Disponible | 267 000€ | Voir |
| Voir | Disponible | 281 700€ | A203 | Appt. | T2 | 40.08m2 | 2ème | Disponible | 281 700€ | Voir |
| Voir | Disponible | 289 600€ | A303 | Appt. | T2 | 40.08m2 | 3ème | Disponible | 289 600€ | Voir |

