Ce lot n’est plus disponible chez VIANOVA ou est vendu.
Vous pouvez revenir dans 24h pour vérifier le stock à jour ou contacter un conseiller Vianova pour vérifier le stock en direct.
Vous pouvez également continuer votre recherche sur notre site « ici ».
Prix
Type
Appt. au 1er
Appt. au 1er
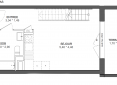
Pièces
T3
T3
Surface
59.92 m²
59.92 m²
Exposition
Sud-Est
Sud-Est
Ville
Ivry-sur-Seine (94200)
Ivry-sur-Seine (94200)
Livraison
2ème trimestre 2028
2ème trimestre 2028
Informations
01 81 80 39 10
01 81 80 39 10
Présentation du programme "Ivry Confluences 1"
C'est un quartier de nouvelle génération très en vue qui accueille le programme immobilier neuf Vianova : Ivry Confluences. Ici, vous bénéficiez d'accès rapides sur le boulevard périphérique, l'A4 et l'A86, de la proximité du RER C, de l'arrivée imminente du TZen 5* et prolongement de la ligne 10 du métro en cours d'étude. Ce programme RE 2020 s'anime d'un agréable jardin de contemplation en coeur d'îlot et d'une terrasse commune avec potager partagé.* Horizon 2025. Source : ivry94.fr
Autres logements T3 du programme "Ivry Confluences 1"
| Disponibilité | Prix | No | Genre | Pièces | Surface | Étage | Disponibilité | Prix | ||
|---|---|---|---|---|---|---|---|---|---|---|
| Voir | Disponible | D1102 | Appt. | T3 | 65.44m2 | 11ème | Disponible | Voir | ||
| Voir | Disponible | D1202 | Appt. | T3 | 65.44m2 | 12ème | Disponible | Voir | ||
| Voir | Disponible | D1301 | Appt. | T3 | 68.9m2 | 13ème | Disponible | Voir | ||
| Voir | Disponible | D302 | Appt. | T3 | 57.3m2 | 3ème | Disponible | Voir |

