Prix
484 000€  (TVA 20%)
443 667€  (TVA 10%)
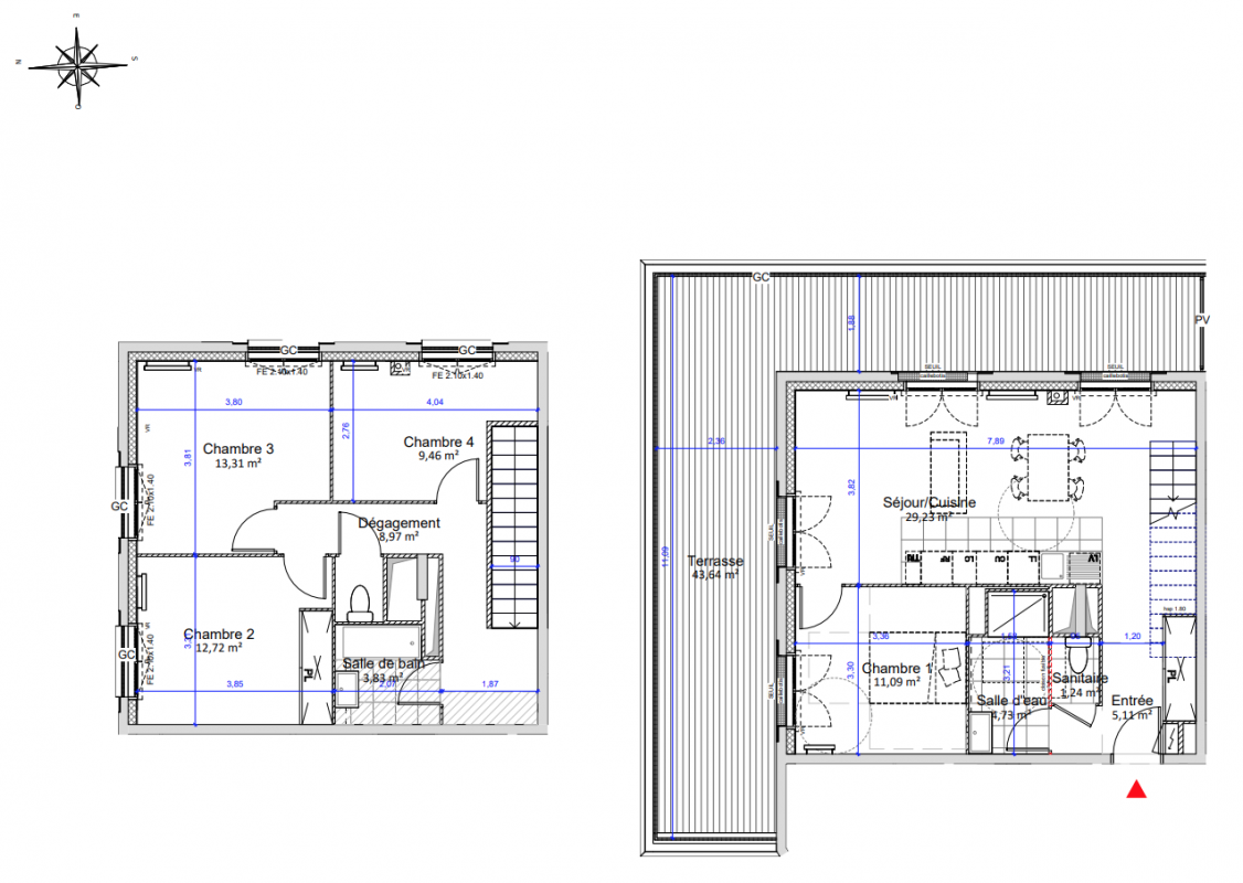
Type
Appt. au 6ème
Pièces
T5
Surface
99.69 m²
Exposition
-
Ville
Chevilly-Larue (94550)
Livraison
4ème trimestre 2028
Informations
01 81 80 39 10

Présentation du programme "Horizon"

Autres logements T5 du programme "Horizon"

Disponibilité Prix Genre Pièces Surface Étage
Voir
Disponible
487 000€ Appt. T5 101.43m2
Le bon plan
5ème
Voir
Disponible
533 000€ Appt. T5 110.76m2 5ème
DO NOT CLICK