Ce lot n’est plus disponible chez VIANOVA ou est vendu.
Vous pouvez revenir dans 24h pour vérifier le stock à jour ou contacter un conseiller Vianova pour vérifier le stock en direct.
Vous pouvez également continuer votre recherche sur notre site « ici ».
273 000€
Appt. au 2ème
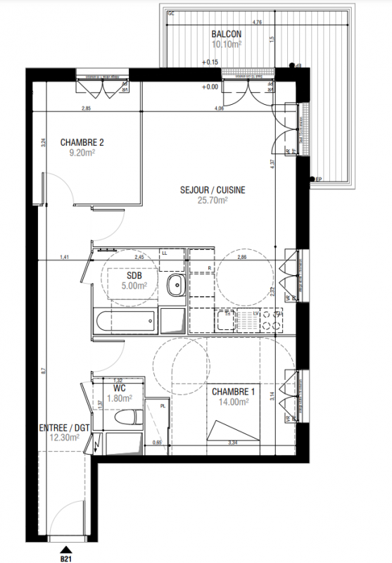
T3
69 m²
-
Pontoise (95300)
4ème trimestre 2027
01 81 80 39 10
Présentation du programme "Idylle"
Découvrez Idylle, votre nouvelle résidence située au cœur du quartier Bossut à Pontoise, rue du Premier Dragon. Idylle propose 34 appartements, du studio au 5 pièces, alliant confort et praticité, avec pour chaque logement, balcon, terrasse ou jardin privatif. Située dans un quartier calme et verdoyant, elle permet de profiter d’un cadre agréable tout en restant proche des transports et des services essentiels. Les résidents bénéficient d’un accès facile aux commerces et services, situés à 5 minutes à pied : boulangerie, brasserie, pharmacie, crèche, écoles, collège et université.Un arrêt de bus se trouve au pied de la résidence, facilitant les déplacements.La Gare de Pontoise, accessible en 10 minutes à pied, permet de rejoindre Paris en moins de 45 minutes via la ligne J du Transilien. ♻ Certifiée NF Habitat HQE – Très Performant, la résidence Idylle offre des logements sains, économes en énergie et respectueux de l’environnement grâce à des matériaux durables et une conception optimisée. Cette résidence est idéale pour les primo-accédants (éligible dispositif prêt à taux zéro) et accédants.
Autres logements T3 du programme "Idylle"
| Disponibilité | Prix | No | Genre | Pièces | Surface | Étage | Disponibilité | Prix | ||
|---|---|---|---|---|---|---|---|---|---|---|
| Voir | Archivé | 270 000€ | B06 | Appt. | T3 | 66.6m2 Le bon plan | 0-RDC | Archivé | 270 000€ | Voir |
| Voir | Archivé | 266 000€ | B12 | Appt. | T3 | 63.8m2 | 1er | Archivé | 266 000€ | Voir |
| Voir | Archivé | 272 000€ | B22 | Appt. | T3 | 63.8m2 | 2ème | Archivé | 272 000€ | Voir |
| Voir | Archivé | 251 000€ | A02 | Appt. | T3 | 62.2m2 | 0-RDC | Archivé | 251 000€ | Voir |
| Voir | Archivé | 282 000€ | A13 | Appt. | T3 | 71.3m2 | 1er | Archivé | 282 000€ | Voir |
| Voir | Archivé | 289 000€ | A23 | Appt. | T3 | 71.3m2 | 2ème | Archivé | 289 000€ | Voir |
| Voir | Archivé | 248 000€ | A25 | Appt. | T3 | 57.9m2 | 0-RDC | Archivé | 248 000€ | Voir |
| Voir | Archivé | 265 000€ | A31 | Appt. | T3 | 66.5m2 | 3ème | Archivé Mais pas encore vendu 😉 | 265 000€ | Voir |
| Voir | Archivé | 296 000€ | A32 | Appt. | T3 | 71.8m2 | 3ème | Archivé | 296 000€ | Voir |
| Voir | Archivé | 255 000€ | A34 | Appt. | T3 | 57.9m2 | 3ème | Archivé | 255 000€ | Voir |
| Voir | Archivé | 272 000€ | A41 | Appt. | T3 | 65.6m2 | 4ème | Archivé | 272 000€ | Voir |
| Voir | Archivé | 303 000€ | A42 | Appt. | T3 | 71.2m2 | 4ème | Archivé | 303 000€ | Voir |
| Voir | Archivé | 262 000€ | A44 | Appt. | T3 | 57.9m2 | 4ème | Archivé | 262 000€ | Voir |