Ce lot n’est plus disponible chez VIANOVA ou est vendu.

Vous pouvez revenir dans 24h pour vérifier le stock à jour ou contacter un conseiller Vianova pour vérifier le stock en direct.
Vous pouvez également continuer votre recherche sur notre site « ici ».

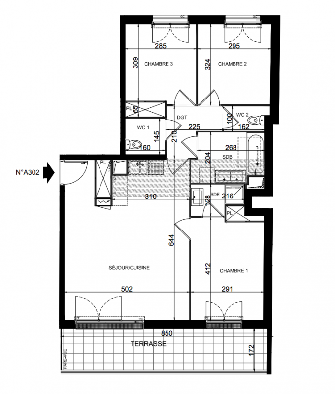
Prix
437 250€
Type
Appt. au 3ème
Pièces
T4
Surface
79 m²
Exposition
-
Ville
Neuilly-Plaisance (93360)
Livraison
1er trimestre 2028
Informations
01 81 80 39 10

Présentation du programme "Plaisancia"

Découvrez en avant-première nos appartements du studio au 5 pièces avec des espaces extérieurs exceptionnels aux derniers niveaux ! Une résidence qui bénéficie d'un emplacement de qualité aux portes de Paris, à proximité du RER A et du futur métro ligne 15 et qui profite des commerces de la rue Maréchal Foch, accessibles à seulement 5 minutes à pied. Entre ambiance résidentielle et qualité de vie, Neuilly-Plaisance séduit par son atmosphère pavillonnaire, ses espaces verts généreux et ses nombreux équipements : cinéma, théâtre, piscine, bibliothèque, mais aussi de vastes lieux de promenade comme le parc des Côteaux d'Avron ou les bords de Marne. Une opportunité à ne pas manquer pour devenir propriétaire dans une commune dynamique et agréable.

Autres logements T4 du programme "Plaisancia"

Disponibilité Prix Genre Pièces Surface Étage
Voir
Disponible
407 000€ Appt. T4 79m2 1er