Prix
432 228€
432 228€
Type
Appt. au 1er
Appt. au 1er
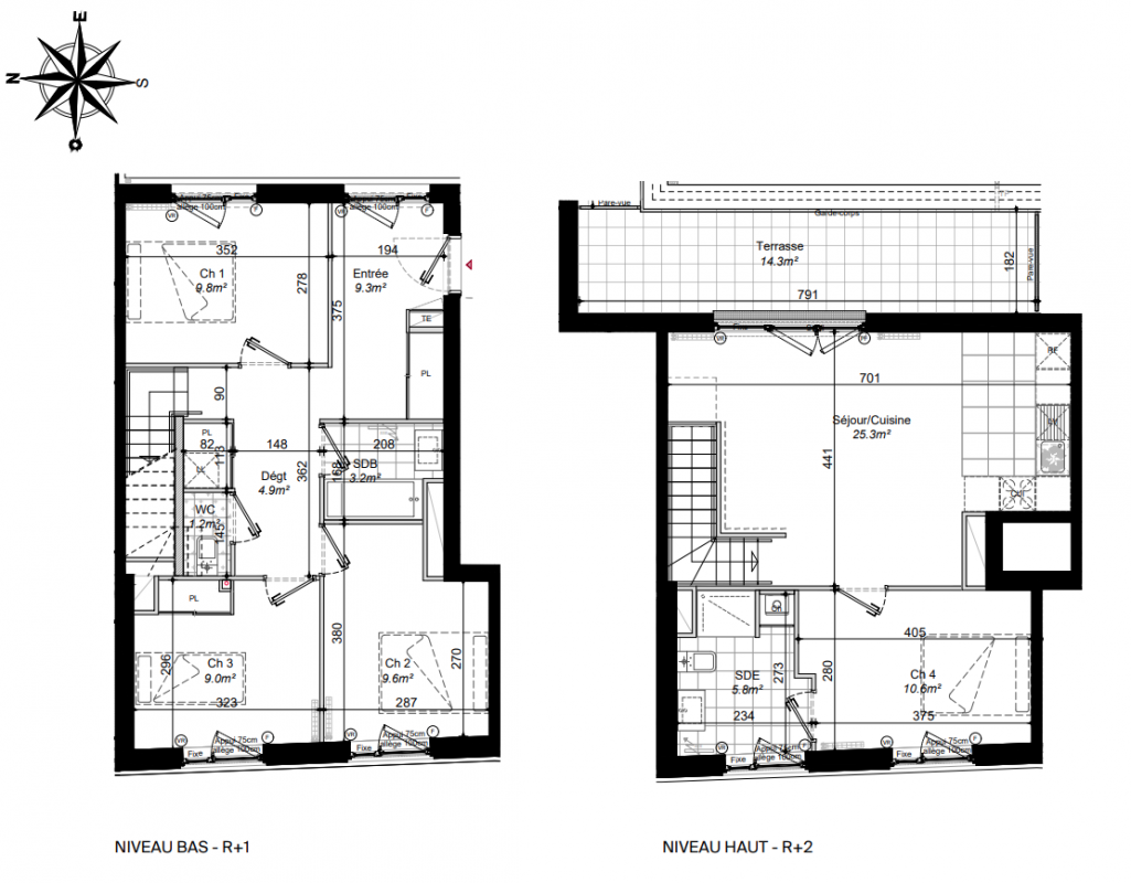
Pièces
T5
T5
Surface
90.3 m²
90.3 m²
Exposition
-
-
Ville
Aubervilliers (93300)
Aubervilliers (93300)
Livraison
2ème trimestre 2027
2ème trimestre 2027
Informations
01 81 80 39 10
01 81 80 39 10
Présentation du programme "Les Rives du canal"
Découvrez une nouvelle résidence signée Alios, composée de 26 appartements du 2 au 5 pièces duplex avec espace extérieur pour la plupart. Les appartements sont traversants et bénéficient de belles expositions. La nature est également mise à l’honneur avec un jardin commun, un mail paysager et le square Roser qui se situe juste à côté de la résidence.