Prix
252 000€  (TVA 20%)
231 000€  (TVA 10%)
Type
Appt. au 0-RDC
Pièces
T2
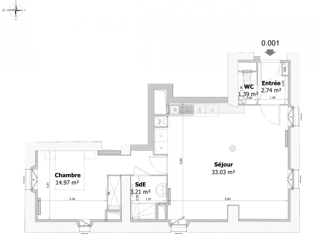
Surface
55 m²
Exposition
Sud
Ville
Pomponne (77400)
Livraison
3ème trimestre 2026
Informations
01 81 80 39 10

Présentation du programme "LE DOMAINE DE CHABANNEAUX"

Devenez propriétaire de votre appart neuf : ON VOUS REMBOURSE JUSQU'A 500 EUROS PAR MOIS (1) pendant les 3 premières années + FRAIS DE NOTAIRE OFFERTS (2) jusqu'au 31 mars 2026.DERNIER 2 PIECES NEUF A SAISIR - LIVRAISON RAPIDE ! Saisissez cette opportunité exceptionnelle pour habiter ou investir ! Une adresse située à seulement 4 minutes à pied de la gare de Lagny-Thorigny, ligne P du transilien, permettant de rejoindre Paris Gare de l'Est en 25 minutes. Pomponne offre un cadre de vie agréable, avec un paysage verdoyant bordé au sud par la Marne. La commune bénéficie d'une situation privilégiée, à proximité de l'aéroport Roissy-Charles de Gaule, du parc Disneyland Paris et du centre commercial Val d'Europe, qui dynamise la ville et lui confère de nombreux atouts.
LE SAVIEZ-VOUS ? Pour acheter votre appartement neuf de 3 pièces à Pomponne, vous pouvez bénéficier d'un Prêt à Taux Zéro (PTZ) pouvant aller jusqu'à 88 200 euros (sous réserve d'éligibilité). Renseignez-vous !
(1)(2) Voir conditions sur notre site internet.

Autres logements T2 du programme "LE DOMAINE DE CHABANNEAUX"

Pas de logements disponibles
DO NOT CLICK