Prix
438 000€
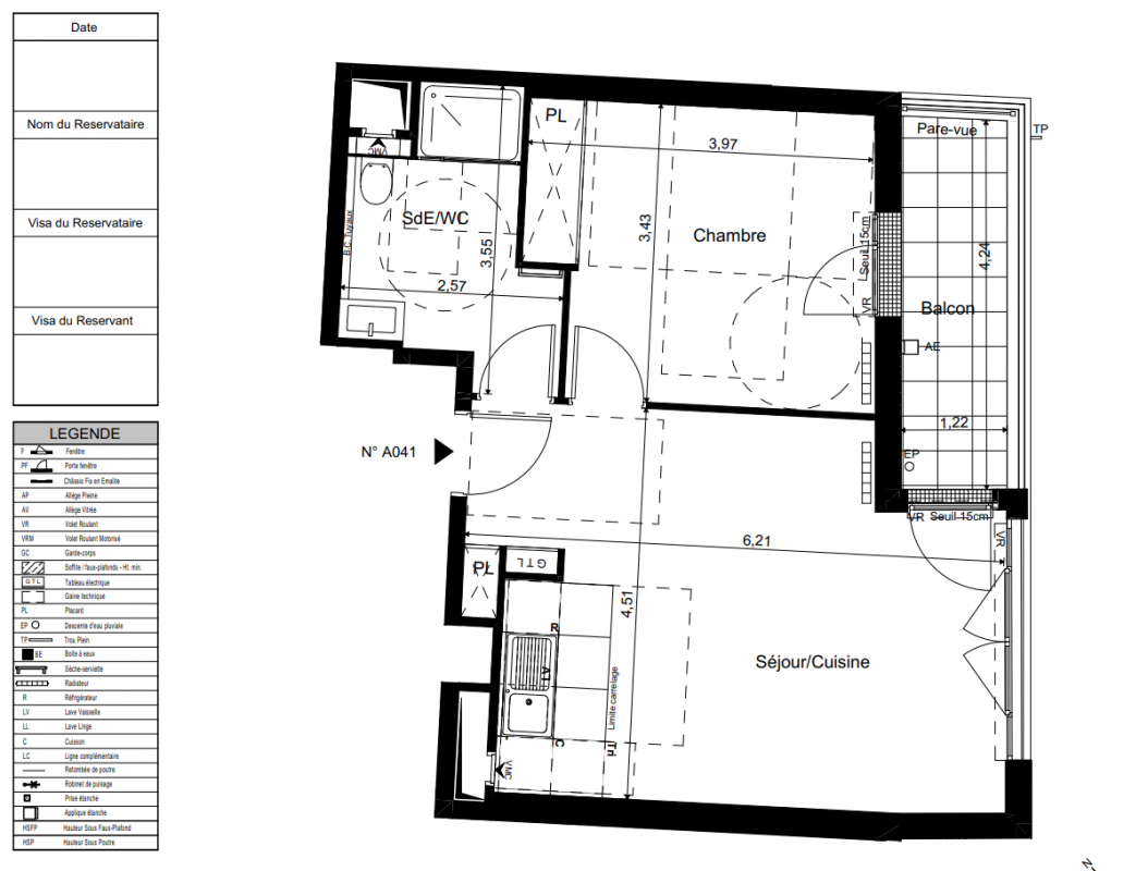
Type
Appt. au 4ème
Pièces
T2
Surface
44.9 m²
Exposition
Sud
Ville
Suresnes (92150)
Livraison
3ème trimestre 2026
Informations
01 81 80 39 10

Présentation du programme "METAMORPHOSE"

SURESNES (92) : DERNIERES OPPORTUNITES - PROFITEZ DE NOS OFFRES POUR DEVENIR PROPRIETAIRE A SURESNES - LIVRAISON SEPTEMBRE 2026 ! TRAVAUX EN COURS Quai Gallieni/rue Benoît Malon/rue Salomon de Rothschild à deux pas de la Seine, VINCI Immobilier et BROWNFIELDS vous proposent "METAMORPHOSE" un bel ensemble résidentiel bordé d'un espace vert planté. Vous serez séduits par les derniers beaux appartements du 2 au 5 pièces et les villas-appartements avec de généreux espaces extérieurs : balcons, terrasses plein-ciel ou jardins privatifs. Vous profiterez d'un cœur d'îlot paysager et pour certains, de belles vues dégagées sur le bois de Boulogne, la Défense ou le Mont Valérien. Dans ce cadre verdoyant vous serez à moins de 10 mn des commerces du centre-ville, des équipements scolaires, publics, culturels et sportifs. L'arrêt "Belvédère" du Tram T2 situé à 600 m, vous permettra de rejoindre La Défense (RER A, M1, Transiliens L et U). A horizon 2030, la desserte sera complétée par la gare Rueil-Suresnes Mont-Valérien. Vous profiterez pour l’acquisition de votre résidence principale du nouveau PTZ.

Autres logements T2 du programme "METAMORPHOSE"

Disponibilité Prix Genre Pièces Surface Étage
Voir
Disponible
482 000€ Appt. T2 49.52m2 0-RDC
DO NOT CLICK