377 630€ (TVA 20%)
332 000€ (TVA 5.5%)
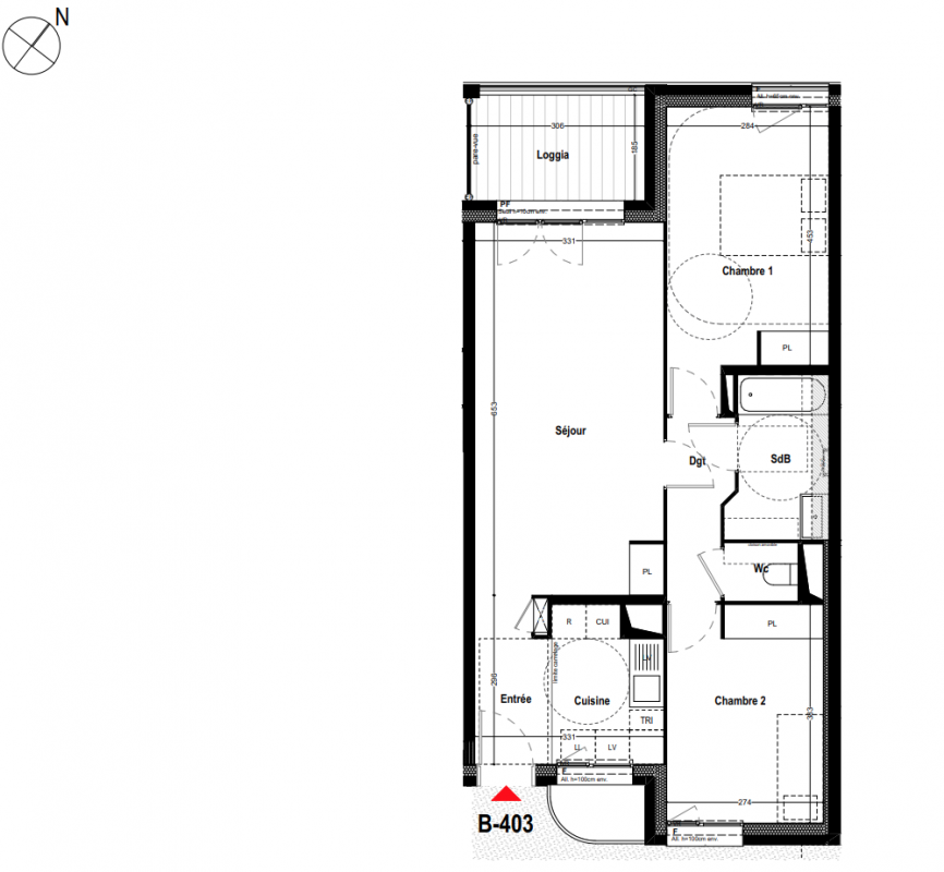
Appt. au 4ème
-
63.99 m²
Nord-Ouest
Nanterre (92000)
4ème trimestre 2027
01 81 80 39 10
Présentation du programme "Jardin Hanaé - Petit Nanterre"
Et si votre futur chez-vous alliait nature généreuse, architecture lumineuse et connectivité parfaite ?À Nanterre, découvrez Jardin Hanaé, une résidence d’exception nichée dans un écrin de verdure, à quelques minutes de La Défense. Un lieu rare, conçu pour ceux qui rêvent d’un cadre paisible sans renoncer à l’effervescence urbaine. Ici, tout est pensé pour vous offrir une vie plus douce, plus inspirante, plus équilibrée.UNE PARENTHESE DE NATURE EN VILLEFace à un jardin japonais de 8 000 m², Jardin Hanaé vous invite à vivre au rythme de la nature, tout en restant connecté au cœur de la métropole parisienne.Dès l’entrée, vous serez séduit par la signature paysagère du projet :Un cœur d’îlot végétalisé, avec bosquets, haies, pergolas, placettes partagées…Plus de 60 % d’espaces en pleine terre, pour un cadre frais et apaisantDes jardins privatifs, balcons, terrasses ou loggias pour TOUS les logementsUNE RÉSIDENCE QUI A TOUT POUR PLAIREPensée comme un lieu de vie harmonieux et élégant, Jardin Hanaé propose :Des appartements du studio au 5 pièces duplex, lumineux et traversantsUne architecture contemporaine, sobre et raffinée, aux matériaux nobles : pierre, bois, enduits minérauxDe belles hauteurs, des duplex en attique avec terrasses plein cielDes espaces communs soignés : local vélo, stationnements en sous-sol ENTRE QUIÉTUDE ET ACCESSIBILITÉ TOTALEVous profitez d’une situation idéale dans un quartier en pleine renaissance, à la fois calme et connecté :Tramway T2 – Victor Basch à 9 min de La DéfenseTramway T1 – Place des Muguets, à 200 m (mise en service prévue en 2031) A86 à 100 m pour rejoindre Paris rapidementProximité immédiate des commerces, crèches, écoles, parcs, infrastructures sportives
Autres logements - du programme "Jardin Hanaé - Petit Nanterre"
| Disponibilité | Prix | No | Genre | Pièces | Surface | Étage | Disponibilité | Prix | ||
|---|---|---|---|---|---|---|---|---|---|---|
| Voir | Optionné | 466 351€ | C106 | Appt. | - | 85.27m2 | 1er | Optionné Mais pas encore vendu 😉 | 466 351€ | Voir |
| Voir | Disponible | 663 128€ | C401 | Appt. | - | 98.05m2 Le bon plan | 4ème | Disponible | 663 128€ | Voir |
| Voir | Disponible | 672 227€ | C405 | Appt. | - | 99.96m2 | 4ème | Disponible | 672 227€ | Voir |
| Voir | Disponible | 328 720€ | C203 | Appt. | - | 52.9m2 | 2ème | Disponible | 328 720€ | Voir |
| Voir | Disponible | 375 355€ | B303 | Appt. | - | 63.05m2 | 3ème | Disponible | 375 355€ | Voir |
| Voir | Optionné | 467 488€ | C206 | Appt. | - | 85.24m2 | 2ème | Optionné Mais pas encore vendu 😉 | 467 488€ | Voir |
| Voir | Disponible | 584 645€ | B503 | Appt. | - | 102.09m2 | 5ème | Disponible | 584 645€ | Voir |
| Voir | Disponible | 522 085€ | C402 | Appt. | - | 92.92m2 | 4ème | Disponible | 522 085€ | Voir |
| Voir | Optionné | 340 095€ | B402 | Appt. | - | 53m2 | 4ème | Optionné Mais pas encore vendu 😉 | 340 095€ | Voir |
| Voir | Disponible | 328 720€ | B002 | Appt. | - | 51.35m2 | 0-RDC | Disponible | 328 720€ | Voir |
| Voir | Disponible | 478 863€ | C305 | Appt. | - | 85.24m2 | 3ème | Disponible | 478 863€ | Voir |
| Voir | Disponible | 363 981€ | B101 | Appt. | - | 64.8m2 | 1er | Disponible | 363 981€ | Voir |
| Voir | Optionné | 365 118€ | B103 | Appt. | - | 63.05m2 | 1er | Optionné Mais pas encore vendu 😉 | 365 118€ | Voir |
| Voir | Disponible | 378 768€ | C201 | Appt. | - | 62.29m2 | 2ème | Disponible | 378 768€ | Voir |
| Voir | Disponible | 490 237€ | C301 | Appt. | - | 86.87m2 | 3ème | Disponible | 490 237€ | Voir |
| Voir | Optionné | 366 256€ | B201 | Appt. | - | 64.8m2 | 2ème | Optionné Mais pas encore vendu 😉 | 366 256€ | Voir |