231 600€
387 900€
1 633€
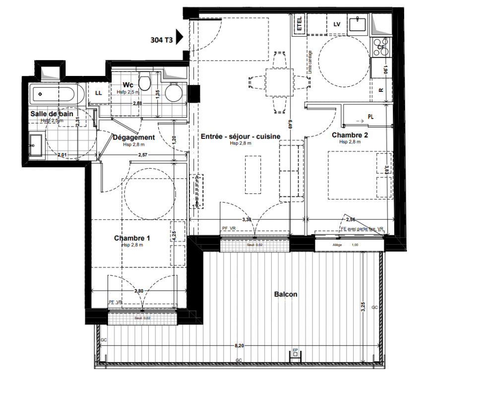
Type
Appt. au 3ème
Pièces
T3
Surface
59.2 m²
Exposition
-
Ville
Issy-les-Moulineaux (92130)
Livraison
2ème trimestre 2025
Informations
01 81 80 39 10

Présentation du programme "CARRE DES ARTS"

Autres logements T3 du programme "CARRE DES ARTS"

Disponibilité Prix Genre Pièces Surface Étage
Voir
Disponible
822 000€ Appt. T3 54.3m2 0-RDC
DO NOT CLICK