422 400€ (TVA 20%)
371 360€ (TVA 5.5%)
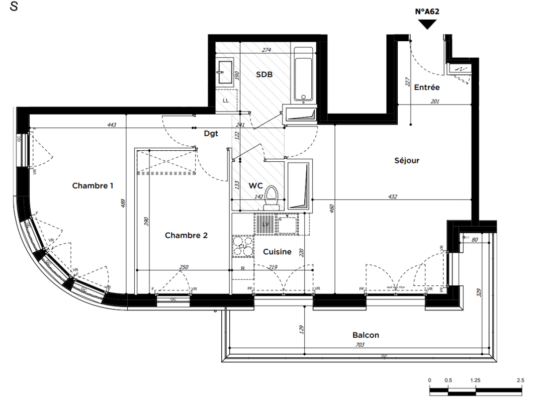
Appt. au 6ème
T3
61.02 m²
Sud
Fontenay-aux-Roses (92260)
4ème trimestre 2027
01 81 80 39 10
Présentation du programme "Programme neuf Fontenay-aux-Roses (92260)"
NOUVEAU à FONTENAY-AUX-ROSES ! Soyez parmi les premiers à choisir votre appartement neuf ! Et en plus avec la TVA réduite à 5,5%, devenez propriétaire pour le même prix que votre loyer ! Découvrez nos appartements du 2 au 4 pièces, dotés pour certains d'une double exposition favorisant l'ensoleillement. Tous les logements sont équipés d'un espace extérieur ; balcon, terrasse ou jardin privatif, idéal pour profiter du plein air dès les premiers beaux jours. Côté prestations, les résidents bénéficieront d'espaces partagés conviviaux comme un jardin commun et un potager partagé, ainsi que d'un parking en sous-sol et d'un local à vélos. Conçue comme un hommage au style Art Déco caractéristique de Fontenay-aux-Roses, la résidence dévoile une architecture particulièrement séduisante grâce à l'élégance de son dessin et à la qualité de la pierre utilisée en façade. Implantée au cœur du nouveau quartier des Paradis, elle bénéficie d'une accessibilité directe, avec l'arrêt de bus "Léon Blum" au pied de la résidence, le RER B _ Fontenay-aux-Roses _ à 750 m et la station _ Sceaux _ à 600 m. À moins de 10 minutes à pied, vous trouverez une crèche, une école élémentaire, ainsi qu'un supermarché et de nombreux commerces de proximité. Le quartier accueillera également, à terme, un terrain de sport et une salle de boxe, contribuant à la dynamique de ce renouvellement urbain. Réputée pour ses espaces verts et ses nombreux parcs, Fontenay-aux-Roses se distingue par son identité de ville à taille humaine, offrant un équilibre rare entre nature et vie urbaine, dans un environnement calme et familial. Contactez-vite un de nos conseillers pour découvrir tous nos appartements neufs à FONTENAY-AUX-ROSES et pour être parmi les premiers à choisir le logement de vos rêves !
Autres logements T3 du programme "Programme neuf Fontenay-aux-Roses (92260)"
| Disponibilité | Prix | No | Genre | Pièces | Surface | Étage | Disponibilité | Prix | ||
|---|---|---|---|---|---|---|---|---|---|---|
| Voir | Disponible | 443 500€ | A22 | Appt. | T3 | 70.54m2 | 2ème | Disponible | 443 500€ | Voir |
| Voir | Disponible | 411 700€ | A44 | Appt. | T3 | 62.52m2 | 4ème | Disponible | 411 700€ | Voir |
| Voir | Disponible | 414 100€ | A52 | Appt. | T3 | 61.02m2 | 5ème | Disponible | 414 100€ | Voir |
| Voir | Disponible | 419 900€ | A53 | Appt. | T3 | 62.52m2 | 5ème | Disponible | 419 900€ | Voir |
| Voir | Disponible | 428 200€ | A63 | Appt. | T3 | 62.56m2 | 6ème | Disponible | 428 200€ | Voir |
| Voir | Disponible | 436 600€ | A82 | Appt. | T3 | 61.45m2 | 8ème | Disponible | 436 600€ | Voir |
| Voir | Disponible | 421 100€ | B11 | Appt. | T3 | 66.47m2 | 1er | Disponible | 421 100€ | Voir |
| Voir | Disponible | 430 600€ | B21 | Appt. | T3 | 66.47m2 | 2ème | Disponible | 430 600€ | Voir |
| Voir | Disponible | 438 800€ | B31 | Appt. | T3 | 66.47m2 | 3ème | Disponible | 438 800€ | Voir |
| Voir | Disponible | 450 700€ | B41 | Appt. | T3 | 66.47m2 | 4ème | Disponible | 450 700€ | Voir |
| Voir | Disponible | 456 500€ | B51 | Appt. | T3 | 66.47m2 | 5ème | Disponible | 456 500€ | Voir |