Ce lot n’est plus disponible chez VIANOVA ou est vendu.
Vous pouvez revenir dans 24h pour vérifier le stock à jour ou contacter un conseiller Vianova pour vérifier le stock en direct.
Vous pouvez également continuer votre recherche sur notre site « ici ».
389 000€
Appt. au 5ème
-
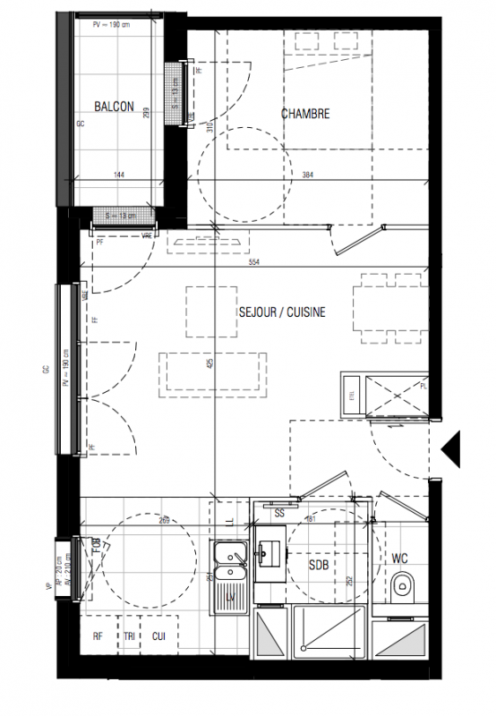
47.49 m²
-
Bourg-la-Reine (92340)
4ème trimestre 2027
01 81 80 39 10
Présentation du programme "L'AVANT-GARDE"
Idéalement située à proximité immédiate du centre-ville de Bourg-la-Reine, dans le prestigieux quartier du "Petit Chambord", L'AVANT-GARDE s’impose comme une adresse unique alliant élégance, confort et qualité. Entre le parc de Sceaux et les commodités du centre-ville, cette résidence vous offre un cadre de vie privilégié où tout est accessible à pied.Une résidence intimiste et haut de gammeAvec seulement 19 logements, du studio au 5 pièces, L'AVANT-GARDE a été pensée pour répondre aux attentes des plus exigeants. Chaque appartement bénéficie d’un espace extérieur généreux : terrasses, balcons, loggias ou rooftops. La qualité architecturale et les prestations haut de gamme garantissent un confort inédit et durable.Un emplacement stratégique et pratiqueÀ quelques pas des commerces, restaurants, écoles et services, et à proximité des transports en commun, cette résidence facilite votre quotidien tout en offrant un cadre calme et verdoyant. Profitez également des nombreuses activités culturelles et de loisirs aux alentours, comme celles proposées par le parc de Sceaux.Une conception responsable et durableCertifiée NF Habitat HQE et conforme à la norme RE2020, L'AVANT-GARDE répond aux standards les plus élevés en matière de performances énergétiques, d’isolation phonique et de respect de l’environnement.
Autres logements - du programme "L'AVANT-GARDE"
| Disponibilité | Prix | No | Genre | Pièces | Surface | Étage | Disponibilité | Prix | ||
|---|---|---|---|---|---|---|---|---|---|---|
| Voir | Archivé | 633 000€ | 43 | Appt. | - | 84.83m2 | 4ème | Archivé Mais pas encore vendu 😉 | 633 000€ | Voir |
| Voir | Archivé | 548 000€ | 35 | Appt. | - | 71.04m2 | 3ème | Archivé | 548 000€ | Voir |
| Voir | Archivé | 559 000€ | 45 | Appt. | - | 71.14m2 | 4ème | Archivé | 559 000€ | Voir |
| Voir | Archivé | 614 000€ | 23 | Appt. | - | 84.64m2 | 2ème | Archivé | 614 000€ | Voir |
| Voir | Archivé | 517 000€ | 14 | Appt. | - | 69.45m2 | 1er | Archivé | 517 000€ | Voir |
| Voir | Archivé | 650 000€ | 53 | Appt. | - | 84.83m2 | 5ème | Archivé | 650 000€ | Voir |
| Voir | Archivé | 536 000€ | 44 | Appt. | - | 69.5m2 | 4ème | Archivé | 536 000€ | Voir |
| Voir | Archivé | 526 000€ | 34 | Appt. | - | 69.5m2 | 3ème | Archivé | 526 000€ | Voir |