332 000€
Appt. au 2ème
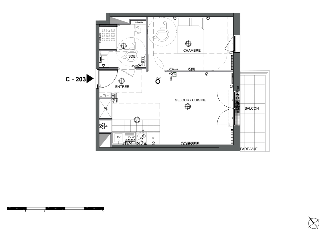
T2
43.64 m²
-
Bois-Colombes (92270)
1er trimestre 2025
01 81 80 39 10
Présentation du programme "L'Emblème"
Située au 303-313 avenue d’Argenteuil à Bois-Colombes, la résidence L’Emblème est une résidence neuve livrée, proposant 27 appartements du studio au 4 pièces duplex, tous prolongés par un espace extérieur privatif (balcon, terrasse ou jardin selon les lots).Pensée pour répondre aussi bien aux attentes des accédants que des investisseurs, la résidence offre des logements fonctionnels, aux prestations actuelles et soignées, au sein d’un ensemble sécurisé, organisé autour d’un cœur d’îlot végétalisé. Des places de stationnement en sous-sol (selon lots), un local vélos et un supermarché en pied d’immeuble complètent l’offre.Parking en supplément de 20 000 € à 30 000 €Appartements bénéficiant de toutes les garanties du neuf et de frais de notaire réduits.Pas de dénonciation, merci de contacter Neil BELHADI, responsable prescription par mail : neil.belhadi@Vianovapartners.fr ou par téléphone au 01 81 80 39 10
Autres logements T2 du programme "L'Emblème"
| Disponibilité | Prix | No | Genre | Pièces | Surface | Étage | Disponibilité | Prix | ||
|---|---|---|---|---|---|---|---|---|---|---|
| Voir | Disponible | 358 440€ | 5910-A4-305 | Appt. | T2 | 46.5m2 | 3ème | Disponible | 358 440€ | Voir |
| Voir | Disponible | 328 000€ | 5928-C-102 | Appt. | T2 | 43.54m2 | 1er | Disponible | 328 000€ | Voir |
| Voir | Disponible | 363 000€ | 5914-A4-0404 | Appt. | T2 | 46.5m2 | 4ème | Disponible | 363 000€ | Voir |