175 052€ (TVA 20%)
153 900€ (TVA 5.5%)
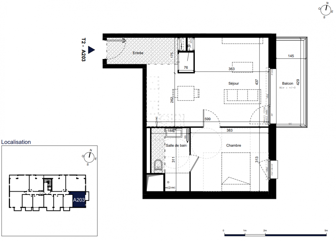
Appt. au 2ème
T2
45.23 m²
-
Béthune (62400)
4ème trimestre 2028
01 81 80 39 10
Présentation du programme "EQUILIBRE"
ÉQUILIBRE - Appartements neufs à Béthune.
Devenez propriétaire à Béthune avec TVA réduite 5,5 % et PTZ*
Située dans le quartier de l'Horlogerie, la résidence bénéficie d'un environnement en pleine transformation, à proximité du centre-ville, de la gare et de nombreux commerces et services.
ÉQUILIBRE propose des appartements du studio au 5 pièces, adaptés à tous les parcours de vie : primo-accédants, familles ou investisseurs.
Implantée dans un écoquartier en développement, la résidence s'inscrit dans une dynamique urbaine moderne, alliant accessibilité, qualité de vie et proximité des essentiels du quotidien.
Son architecture contemporaine et ses volumes équilibrés participent à une intégration harmonieuse dans son environnement.
Les appartements offrent :
•Des agencements optimisés et fonctionnels
•Des pièces de vie lumineuses
•Des espaces extérieurs (loggias) prolongeant les séjours
•Une conception pensée pour le confort au quotidien
Les + du programme :
•Large choix de typologies du studio au 5 pièces
•Espaces extérieurs pour la majorité des logements
•Quartier en développement avec fort potentiel
•Proximité des commerces, établissements scolaires et transports
Au quotidien, profitez d'un environnement pratique :
•Gare de Béthune accessible rapidement
•Commerces, restaurants et services à proximité
•Équipements sportifs, culturels et universitaires accessibles
•Accès rapide aux grands pôles (Lille, Lens)
Un cadre de vie urbain équilibré, idéal pour habiter ou investir dans un quartier en devenir, alliant dynamisme et confort de vie.
Contactez-nous dès maintenant au 02 52 07 10 08 pour recevoir la brochure et découvrir les disponibilités.
Autres logements T2 du programme "EQUILIBRE"
| Disponibilité | Prix | No | Genre | Pièces | Surface | Étage | Disponibilité | Prix | ||
|---|---|---|---|---|---|---|---|---|---|---|
| Voir | Disponible | 157 991€ | A101 | Appt. | T2 | 42.09m2 | 1er | Disponible | 157 991€ | Voir |
| Voir | Disponible | 161 403€ | A201 | Appt. | T2 | 42.09m2 | 2ème | Disponible | 161 403€ | Voir |
| Voir | Disponible | 164 815€ | A301 | Appt. | T2 | 42.09m2 | 3ème | Disponible | 164 815€ | Voir |
| Voir | Disponible | 156 853€ | A211 | Appt. | T2 | 42.54m2 | 2ème | Disponible | 156 853€ | Voir |
| Voir | Disponible | 160 265€ | A311 | Appt. | T2 | 42.54m2 | 3ème | Disponible | 160 265€ | Voir |
| Voir | Disponible | 163 678€ | A405 | Appt. | T2 | 42.54m2 | 4ème | Disponible | 163 678€ | Voir |
| Voir | Disponible | 167 090€ | A505 | Appt. | T2 | 42.54m2 | 5ème | Disponible | 167 090€ | Voir |
| Voir | Disponible | 171 640€ | A103 | Appt. | T2 | 45.23m2 | 1er | Disponible | 171 640€ | Voir |
| Voir | Disponible | 177 327€ | A303 | Appt. | T2 | 45.23m2 | 3ème | Disponible | 177 327€ | Voir |
| Voir | Disponible | 176 190€ | A109 | Appt. | T2 | 45.82m2 | 1er | Disponible | 176 190€ | Voir |
| Voir | Disponible | 179 602€ | A209 | Appt. | T2 | 45.82m2 | 2ème | Disponible | 179 602€ | Voir |
| Voir | Disponible | 181 877€ | A309 | Appt. | T2 | 45.82m2 | 3ème | Disponible | 181 877€ | Voir |
| Voir | Disponible | 147 754€ | A111 | Appt. | T2 | 42.54m2 | 1er | Disponible | 147 754€ | Voir |