111 355€ (TVA 20%)
97 900€ (TVA 5.5%)
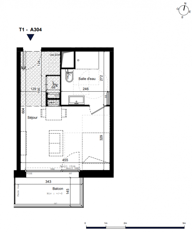
Appt. au 3ème
-
25.94 m²
-
Béthune (62400)
4ème trimestre 2028
01 81 80 39 10
Présentation du programme "EQUILIBRE"
Bénéficiez des frais de notaire offerts*, une opportunité idéale pour concrétiser votre projet !
ÉQUILIBRE - Appartements neufs à Béthune.
Devenez propriétaire à Béthune avec TVA réduite 5,5 % et PTZ*
Située dans le quartier de l'Horlogerie, la résidence bénéficie d'un environnement en pleine transformation, à proximité du centre-ville, de la gare et de nombreux commerces et services.
ÉQUILIBRE propose des appartements du studio au 5 pièces, adaptés à tous les parcours de vie : primo-accédants, familles ou investisseurs.
Implantée dans un écoquartier en développement, la résidence s'inscrit dans une dynamique urbaine moderne, alliant accessibilité, qualité de vie et proximité des essentiels du quotidien.
Son architecture contemporaine et ses volumes équilibrés participent à une intégration harmonieuse dans son environnement.
Les appartements offrent :
•Des agencements optimisés et fonctionnels
•Des pièces de vie lumineuses
•Des espaces extérieurs (loggias) prolongeant les séjours
•Une conception pensée pour le confort au quotidien
Les + du programme :
•Large choix de typologies du studio au 5 pièces
•Espaces extérieurs pour la majorité des logements
•Quartier en développement avec fort potentiel
•Proximité des commerces, établissements scolaires et transports
Au quotidien, profitez d'un environnement pratique :
•Gare de Béthune accessible rapidement
•Commerces, restaurants et services à proximité
•Équipements sportifs, culturels et universitaires accessibles
•Accès rapide aux grands pôles (Lille, Lens)
Un cadre de vie urbain équilibré, idéal pour habiter ou investir dans un quartier en devenir, alliant dynamisme et confort de vie.
Contactez-nous dès maintenant au 02 52 07 10 08 pour recevoir la brochure et découvrir les disponibilités.
*Offre promotionnelle valable du 03/03/2026 au 30/04/2026 inclus, dans la limite des stocks disponibles et réservées aux 10 premiers réservataires sous réserve de la signature d'un contrat de réservation d'un logement SPIRIT. Offre non cumulable avec toute offre en cours et à venir. Les logements commercialisés en Bail Réel Solidaire (BRS) ne sont pas éligibles à cette offre promotionnelle.*Les frais de notaire sont pris en charge par la SCI hors frais d'hypothèq
Autres logements - du programme "EQUILIBRE"
| Disponibilité | Prix | No | Genre | Pièces | Surface | Étage | Disponibilité | Prix | ||
|---|---|---|---|---|---|---|---|---|---|---|
| Voir | Disponible | 157 991€ | A101 | Appt. | - | 42.09m2 | 1er | Disponible | 157 991€ | Voir |
| Voir | Disponible | 171 640€ | A103 | Appt. | - | 45.23m2 | 1er | Disponible | 171 640€ | Voir |
| Voir | Disponible | 104 531€ | A104 | Appt. | - | 25.94m2 | 1er | Disponible | 104 531€ | Voir |
| Voir | Disponible | 104 531€ | A106 | Appt. | - | 26.54m2 | 1er | Disponible | 104 531€ | Voir |
| Voir | Disponible | 112 493€ | A107 | Appt. | - | 28.87m2 | 1er | Disponible | 112 493€ | Voir |
| Voir | Disponible | 112 493€ | A108 | Appt. | - | 28.32m2 | 1er | Disponible | 112 493€ | Voir |
| Voir | Disponible | 176 190€ | A109 | Appt. | - | 45.82m2 | 1er | Disponible | 176 190€ | Voir |
| Voir | Disponible | 230 787€ | A110 | Appt. | - | 63.44m2 | 1er | Disponible | 230 787€ | Voir |
| Voir | Disponible | 161 403€ | A201 | Appt. | - | 42.09m2 | 2ème | Disponible | 161 403€ | Voir |
| Voir | Disponible | 234 199€ | A202 | Appt. | - | 63.09m2 | 2ème | Disponible | 234 199€ | Voir |
| Voir | Disponible | 175 052€ | A203 | Appt. | - | 45.23m2 | 2ème | Disponible | 175 052€ | Voir |
| Voir | Disponible | 107 943€ | A204 | Appt. | - | 25.94m2 | 2ème | Disponible | 107 943€ | Voir |
| Voir | Optionné | 102 256€ | A205 | Appt. | - | 25.12m2 | 2ème | Optionné Mais pas encore vendu 😉 | 102 256€ | Voir |
| Voir | Disponible | 107 943€ | A206 | Appt. | - | 26.54m2 | 2ème | Disponible | 107 943€ | Voir |
| Voir | Disponible | 115 905€ | A207 | Appt. | - | 28.87m2 | 2ème | Disponible | 115 905€ | Voir |
| Voir | Disponible | 115 905€ | A208 | Appt. | - | 28.32m2 | 2ème | Disponible | 115 905€ | Voir |
| Voir | Disponible | 179 602€ | A209 | Appt. | - | 45.82m2 | 2ème | Disponible | 179 602€ | Voir |
| Voir | Disponible | 236 474€ | A210 | Appt. | - | 63.46m2 | 2ème | Disponible | 236 474€ | Voir |
| Voir | Disponible | 156 853€ | A211 | Appt. | - | 42.54m2 | 2ème | Disponible | 156 853€ | Voir |
| Voir | Disponible | 164 815€ | A301 | Appt. | - | 42.09m2 | 3ème | Disponible | 164 815€ | Voir |
| Voir | Disponible | 238 749€ | A302 | Appt. | - | 63.09m2 | 3ème | Disponible | 238 749€ | Voir |
| Voir | Disponible | 177 327€ | A303 | Appt. | - | 45.23m2 | 3ème | Disponible | 177 327€ | Voir |
| Voir | Disponible | 105 668€ | A305 | Appt. | - | 25.12m2 | 3ème | Disponible | 105 668€ | Voir |
| Voir | Disponible | 111 355€ | A306 | Appt. | - | 26.54m2 | 3ème | Disponible | 111 355€ | Voir |
| Voir | Disponible | 119 318€ | A307 | Appt. | - | 28.87m2 | 3ème | Disponible | 119 318€ | Voir |
| Voir | Disponible | 119 318€ | A308 | Appt. | - | 28.32m2 | 3ème | Disponible | 119 318€ | Voir |
| Voir | Disponible | 181 877€ | A309 | Appt. | - | 45.82m2 | 3ème | Disponible | 181 877€ | Voir |
| Voir | Disponible | 241 024€ | A310 | Appt. | - | 63.46m2 | 3ème | Disponible | 241 024€ | Voir |
| Voir | Disponible | 160 265€ | A311 | Appt. | - | 42.54m2 | 3ème | Disponible | 160 265€ | Voir |
| Voir | Disponible | 305 858€ | A401 | Appt. | - | 89.21m2 | 4ème | Disponible | 305 858€ | Voir |
| Voir | Disponible | 299 033€ | A402 | Appt. | - | 90.68m2 | 4ème | Disponible | 299 033€ | Voir |
| Voir | Disponible | 304 720€ | A403 | Appt. | - | 87.53m2 | 4ème | Disponible | 304 720€ | Voir |
| Voir | Disponible | 250 123€ | A404 | Appt. | - | 63.01m2 | 4ème | Disponible | 250 123€ | Voir |
| Voir | Disponible | 163 678€ | A405 | Appt. | - | 42.54m2 | 4ème | Disponible | 163 678€ | Voir |
| Voir | Disponible | 288 796€ | A502 | Appt. | - | 90.68m2 | 5ème | Disponible | 288 796€ | Voir |
| Voir | Disponible | 293 346€ | A503 | Appt. | - | 87.53m2 | 5ème | Disponible | 293 346€ | Voir |
| Voir | Disponible | 253 536€ | A504 | Appt. | - | 63.01m2 | 5ème | Disponible | 253 536€ | Voir |
| Voir | Disponible | 167 090€ | A505 | Appt. | - | 42.54m2 | 5ème | Disponible | 167 090€ | Voir |
| Voir | Disponible | 412 777€ | A602 | Appt. | - | 121.76m2 Le bon plan | 6ème | Disponible | 412 777€ | Voir |
| Voir | Disponible | 226 237€ | A102 | Appt. | - | 63.07m2 | 1er | Disponible | 226 237€ | Voir |
| Voir | Disponible | 147 754€ | A111 | Appt. | - | 42.54m2 | 1er | Disponible | 147 754€ | Voir |
| Voir | Disponible | 284 246€ | A501 | Appt. | - | 89.21m2 | 5ème | Disponible | 284 246€ | Voir |
| Voir | Disponible | 368 417€ | A601 | Appt. | - | 109.78m2 | 6ème | Disponible | 368 417€ | Voir |
| Voir | Optionné | 96 569€ | A105 | Appt. | - | 25.12m2 | 1er | Optionné Mais pas encore vendu 😉 | 96 569€ | Voir |