4 930€
278 070€
- €
278 070€
- €
Type
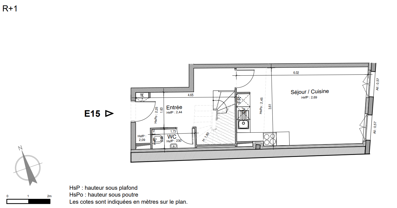
Appt. au 1er
Appt. au 1er
Pièces
T3
T3
Surface
61.68 m²
61.68 m²
Exposition
-
-
Ville
Beauvais (60000)
Beauvais (60000)
Livraison
-
-
Informations
01 81 80 39 10
01 81 80 39 10
Présentation du programme "HOTEL DU LION D'OR DF TRANCHE2"
Derrière une porte cochère, dans l’hyper-centre de Beauvais se trouve l’Hôtel du Lion d’Or, un ancien relais de poste du XVIème siècle. Dès demain quatre appartements éligibles au dispositif fiscal Déficit Foncier vont voir le jour. Cette demeure, avec sa belle cour pavée, est la promesse d’une vie calme et sereine.

