Ce lot n’est plus disponible chez VIANOVA ou est vendu.

Vous pouvez revenir dans 24h pour vérifier le stock à jour ou contacter un conseiller Vianova pour vérifier le stock en direct.
Vous pouvez également continuer votre recherche sur notre site « ici ».

8 500€
271 700€
- €
Type
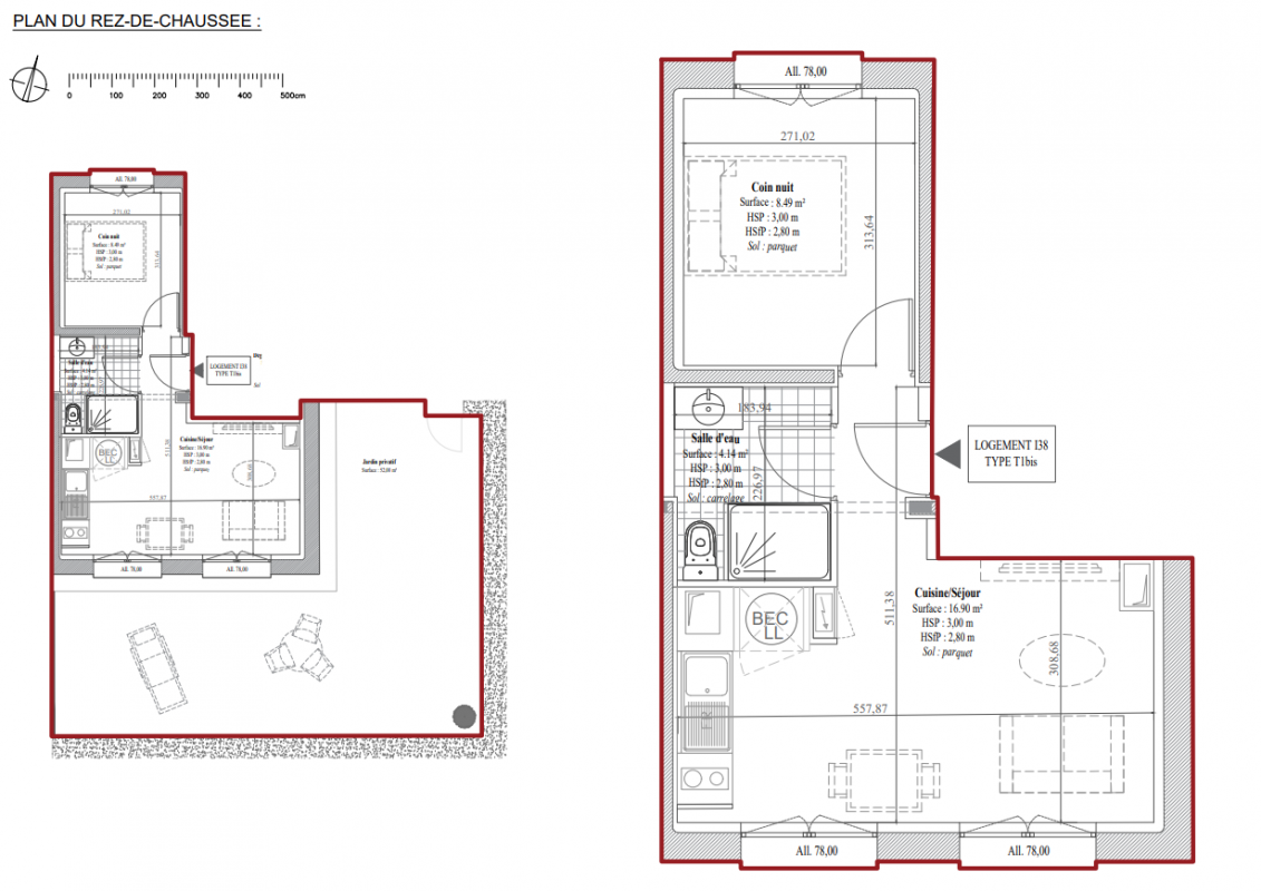
Appt. au 0-RDC
Pièces
Studio
Surface
30.07 m²
Exposition
Sud
Ville
Dreux (28100)
Livraison
3ème trimestre 2027
Informations
01 81 80 39 10

Présentation du programme "DOMAINE DES BAS BUISSONS"

Riche d’un patrimoine historique unique, le centre-ville de Dreux se démarque par son dynamisme et sa qualité de vie. Bordée par la Blaise, Dreux est une véritable ville historique. En sillonnant ses rues piétonnes, vous pourrez découvrir les remarquables maisons à colombages, les édifices historiques majestueux, et les nombreux commerces de proximité qui offrent une vie de quartier unique à ses habitants. Ville chaleureuse et accueillante, Dreux ne cesse de séduire et de surprendre par son charme incontestable.

Autres logements Studio du programme "DOMAINE DES BAS BUISSONS"

Pas de logements disponibles
DO NOT CLICK