399 167€
Appt. au 0-RDC
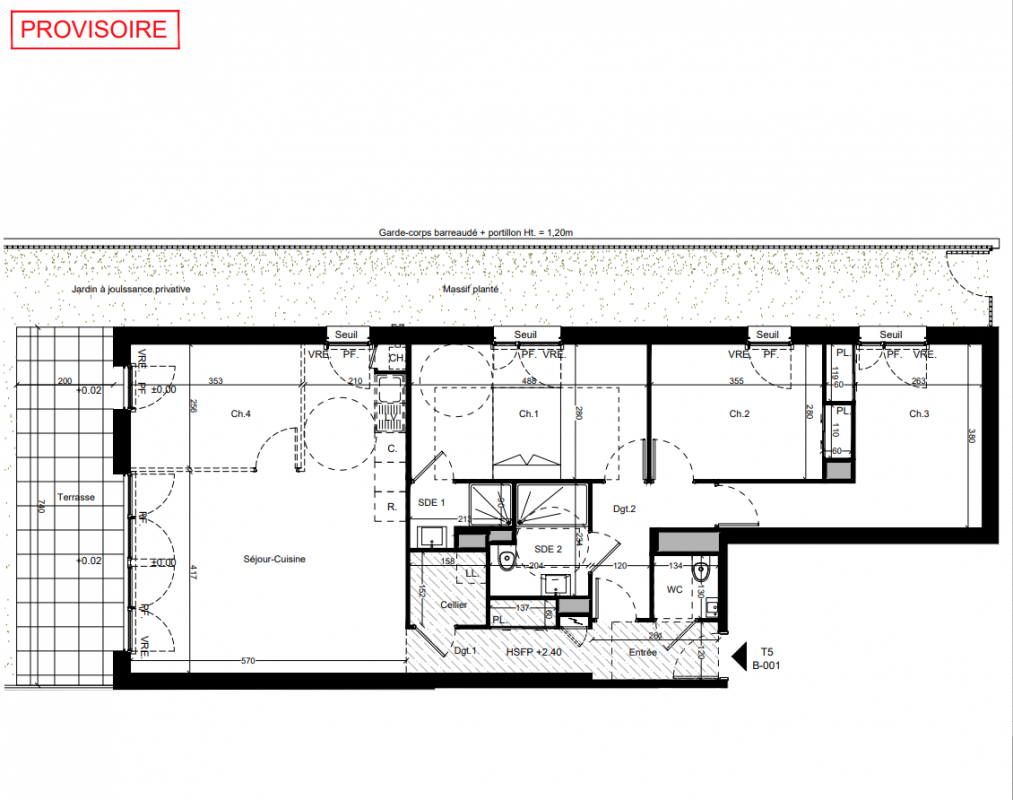
T5
98.56 m²
Ouest
Port-Louis (56290)
1er trimestre 2028
01 81 80 39 10
Présentation du programme "PARC DES REMPARTS"
Vivez l’exception à Port-Louis avec « PARC DES REMPARTS » ! Dans un cadre exceptionnel, au cœur du Morbihan, les équipes Groupe ARC et SEEMO ont choisi de donner vie à ce nouveau programme immobilier. Niché dans la charmante ville de Port-Louis, ce projet incarne un art de vivre entre patrimoine et modernité. Port-Louis séduit par son atmosphère unique. Bordée par l’océan et ouverte sur la rade de Lorient, la ville offre un panorama exceptionnel et un environnement naturel préservé. Ses ruelles pittoresques, son marché convivial, ses plages de sable fin et ses sentiers côtiers en font un lieu de vie aussi agréable que ressourçant. La ville compte plusieurs infrastructures éducatives : trois écoles maternelles et primaires, un collège et même un lycée professionnel, permettant une scolarité complète de la petite section jusqu’au bac, à quelques pas de chez vous. Côté mobilité, Port-Louis est parfaitement relié à Lorient grâce notamment aux navettes maritimes, une liaison rapide et agréable en 15 minutes vers le quai des Indes à Lorient. À seulement quelques pas de la Grande Plage et de la Citadelle, PARC DES REMPARTS bénéficie d’un emplacement privilégié et à proximité immédiate des commerces. Il propose une architecture élégante, à taille humaine : un équilibre harmonieux associant la pierre de caractère au zinc contemporain. Chaque bâtiment bénéficie d’un ascenseur, de larges ouvertures, favorisant ainsi la lumière naturelle et le lien avec l’extérieur grâce aux balcons, jardins ou terrasses. PARC DES REMPARTS comprend des maisons individuelles 5 pièces et des appartements du 2 au 5 pièces, conçus pour répondre aux besoins de chacun : familles, actifs ou retraités en quête de qualité de vie. Entre terre et mer, laissez-vous séduire par le PARC DES REMPARTS, un programme immobilier d’exception: - Maisons individuelles 5 pièces (4 chambres dont 1 au RDC)- Appartements du 2 au 5 pièces- Vues mer pour certains logements- Stationnements pour tous les logements- RE2020 - logements économes en énergie
Autres logements T5 du programme "PARC DES REMPARTS"
| Disponibilité | Prix | No | Genre | Pièces | Surface | Étage | Disponibilité | Prix | ||
|---|---|---|---|---|---|---|---|---|---|---|
| Voir | Disponible | 420 000€ | B003 | Appt. | T5 | 98.29m2 | 0-RDC | Disponible | 420 000€ | Voir |
| Voir | Disponible | 407 500€ | C001 | Appt. | T5 | 98.56m2 | 0-RDC | Disponible | 407 500€ | Voir |
| Voir | Disponible | 386 667€ | A001 | Appt. | T5 | 98.56m2 | 0-RDC | Disponible | 386 667€ | Voir |
| Voir | Disponible | 411 667€ | A003 | Appt. | T5 | 98.3m2 Le bon plan | 0-RDC | Disponible | 411 667€ | Voir |

