132 965€
- €
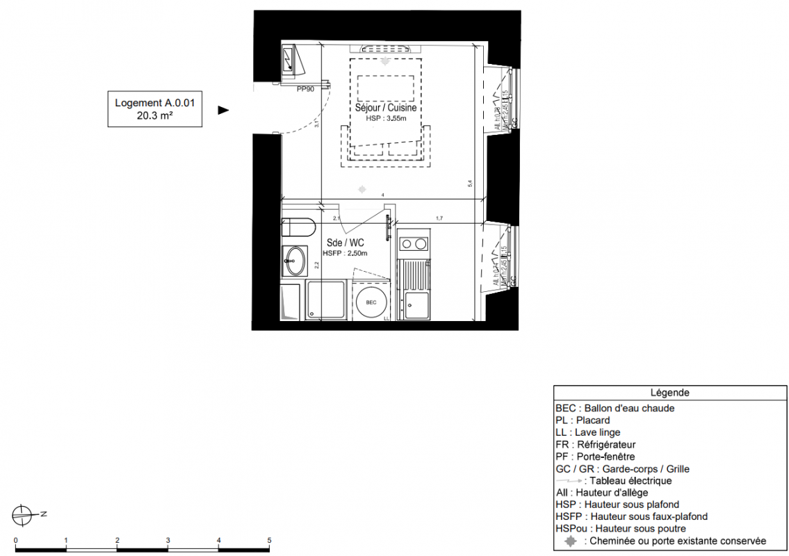
Appt. au 0-RDC
Studio
20.3 m²
-
Guingamp (22200)
2ème trimestre 2028
01 81 80 39 10
Présentation du programme "Un Château en Bretagne"
Guingamp
Au coeur de la Bretagne, Guingamp est une ville d’histoire. En plein centre de la ville, la place du Martray est bordée de maisons à pans de bois et de portes sculptées de la Renaissance, témoins d’un riche passé et typique de l’architecture locale. Le château fort médiéval Pierre II du XIème siècle, majestueux, domine la ville et raconte ses heures de gloire.
Un Château en Bretagne
Né au XVe siècle et sublimé à la Renaissance, ce joyau d’architecture en granit et schiste séduit par son élégante silhouette en L et sa tour colombier du XVIIe siècle. Ancienne propriété de prestigieuses familles nobles, il est aujourd’hui reconnu pour son caractère unique, inscrit à l’inventaire des Monuments Historiques.
Ce bâtiment prestigieux, ancien témoin de l’histoire locale, bénéficiera d'une restauration minutieuse afin de donner naissance à 22 appartements haut de gamme.
Les aménagements préservent les éléments historiques remarquables tels que les sols patrimoniaux, les cheminées en marbre et les décors classés, tout en intégrant le confort moderne.
Implanté dans un parc arboré, le château allie patrimoine et modernité et offre aux futurs résidents un cadre de vie unique et prestigieux au cœur de Guingamp. Chacun des lots est vendu avec une place de stationnement, certains bénéficieront d'un jardin extérieur et d'une cave.
La ville
L’agglomération Guingamp-Paimpol, qui compte environ 70 000 habitants, représente un territoire de taille moyenne au sein de la Bretagne.
L’attractivité résidentielle se concentre principalement sur les villes de Guingamp et Paimpol, qui jouent un rôle central et exercent une influence sur les petites communes environnantes, créant ainsi une polarisation de l’habitat et des services vers ces deux pôles principaux.
Elle constitue le centre d’une petite unité urbaine propre, qui regroupe plusieurs communes autour de la ville et sert de pôle local pour les services, le commerce et l’administration.
Guingamp, est aussi une ville animée et accueillante, avec de nombreux commerces de proximité, des marchés et une vie culturelle riche. Familles, actifs, étudiants et passionnés de sport s’épanouissent dans cette ville à taille humaine, où l’ambiance conviviale est portée par la ferveur du célèbre club de football En Avant Guingamp.
Visualisez la vidéo : Ici
Travaux éligibles : Monuments Historiques et déficit foncier
Autres logements Studio du programme "Un Château en Bretagne"
| Disponibilité | Prix | No | Genre | Pièces | Surface | Étage | Disponibilité | Prix | ||
|---|---|---|---|---|---|---|---|---|---|---|
| Voir | Disponible | 245 605€ | A 2.01 | Appt. | Studio | 33.9m2 | 2ème | Disponible | 245 605€ Prix foncier 13 560€ Prix travaux 222 045€ | Voir |
| Voir | Disponible | 227 535€ | A 2.02 | Appt. | Studio | 31.3m2 | 2ème | Disponible | 227 535€ Prix foncier 12 520€ Prix travaux 205 015€ | Voir |
| Voir | Disponible | 321 360€ | A 1.05 | Appt. | Studio | 44.8m2 | 1er | Disponible | 321 360€ Prix foncier 17 920€ Prix travaux 293 440€ | Voir |
| Voir | Optionné | 155 255€ | A 1.01 | Appt. | Studio | 20.9m2 | 1er | Optionné Mais pas encore vendu 😉 | 155 255€ Prix foncier 8 360€ Prix travaux 136 895€ | Voir |
| Voir | Disponible | 258 115€ | A 0.08 | Appt. | Studio | 35.7m2 | 0-RDC | Disponible | 258 115€ Prix foncier 14 280€ Prix travaux 233 835€ | Voir |
| Voir | Disponible | 408 475€ | A 0.05 | Appt. | Studio | 57.5m2 | 0-RDC | Disponible | 408 475€ Prix foncier 21 850€ Prix travaux 376 625€ | Voir |
| Voir | Disponible | 237 960€ | A 2.03 | Appt. | Studio | 32.8m2 | 2ème | Disponible | 237 960€ Prix foncier 13 120€ Prix travaux 214 840€ | Voir |
| Voir | Disponible | 257 420€ | A 2.04 | Appt. | Studio | 35.6m2 | 2ème | Disponible | 257 420€ Prix foncier 14 240€ Prix travaux 233 180€ | Voir |
| Voir | Optionné | 276 880€ | A 2.05 | Appt. | Studio | 38.4m2 | 2ème | Optionné Mais pas encore vendu 😉 | 276 880€ Prix foncier 15 360€ Prix travaux 251 520€ | Voir |