407 000€ (TVA 20%)
357 821€ (TVA 5.5%)
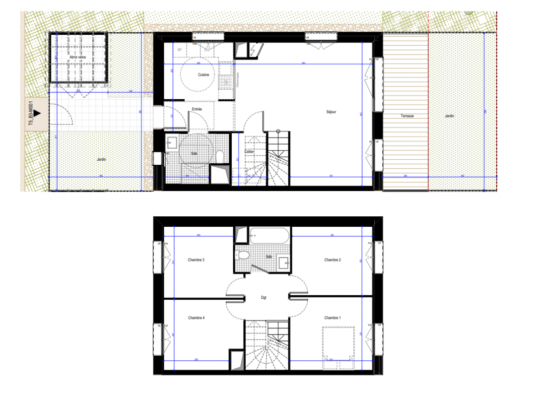
Appt. au 0-RDC
T5
102.5 m²
-
Besançon (25000)
4ème trimestre 2027
01 81 80 39 10
Présentation du programme "BRULARD"
Votre futur logement au coeur du nouveau quartier BRULARD à Besançon. Un lieu de vie connecté, vivant et à votre image. Dans un quartier en pleine transformation, découvrez une nouvelle résidence pensée pour répondre à toutes vos envies de confort, de praticité et de bien-être. Une résidence à taille humaine, des logements pour tous les styles de vie. La résidence propose une quarantaine de logements, du studio fonctionnel au spacieux 4 pièces, ainsi que 9 maisons individuelles. Chaque logement est doté d'un espace extérieur privatif : terrasse, balcon ou jardin et a été conçu avec soin pour offrir des volumes lumineux, une circulation fluide, et un véritable confort au quotidien. Vous y trouverez des prestations modernes, personnalisables selon vos envies, dans un cadre agréable et sécurisé. Cette construction est bas carbone et correspond à toutes les innovations d'un bâtiment durable. Située au coeur du nouveau quartier Grette-BRULARD-Polygones, la résidence bénéficie d'une accessibilité optimale: - Au pied du tramway T1, T2 "BRULARD" pour rejoindre le centre-ville en quelques minutes - À proximité immédiate des commerces, écoles, crèches et services - Environnement résidentiel agréable, à l'écart du tumulte tout en restant connecté Ce projet s'intègre dans une démarche de renouvellement urbain ambitieuse, alliant qualité architecturale, mixité des usages et espaces verts. Ici on privilégie les mobilités douces. Un achat facilité grâce à la TVA réduite. Vous pouvez bénéficier d'une TVA réduite à 5,5 %, sous conditions de ressources. Eligibilité PTZ, investissement en LMNP ou LLI. Une belle opportunité pour accéder à la propriété ou investir, dans un cadre dynamique à fort potentiel. Dites oui à un logement neuf qui vous ressemble. Contactez-nous dès maintenant pour en savoir plus sur nos appartements. Premiers prix indiqués en TVA 5,5%.
Autres logements T5 du programme "BRULARD"
| Disponibilité | Prix | No | Genre | Pièces | Surface | Étage | Disponibilité | Prix | ||
|---|---|---|---|---|---|---|---|---|---|---|
| Voir | Disponible | 470 000€ | B4-A601 | Appt. | T5 | 146.5m2 Le bon plan | 6ème | Disponible | 470 000€ | Voir |
| Voir | Disponible | 397 000€ | B3-M003 | Appt. | T5 | 102.4m2 | 0-RDC | Disponible | 397 000€ | Voir |
| Voir | Disponible | 386 000€ | B3-M005 | Appt. | T5 | 102.7m2 | 0-RDC | Disponible | 386 000€ | Voir |
| Voir | Disponible | 392 000€ | B4-B001 | Appt. | T5 | 110.9m2 | 0-RDC | Disponible | 392 000€ | Voir |
| Voir | Disponible | 367 000€ | B4-B002 | Appt. | T5 | 110.9m2 | 0-RDC | Disponible | 367 000€ | Voir |