Ce lot n’est plus disponible chez VIANOVA ou est vendu.

Vous pouvez revenir dans 24h pour vérifier le stock à jour ou contacter un conseiller Vianova pour vérifier le stock en direct.
Vous pouvez également continuer votre recherche sur notre site « ici ».

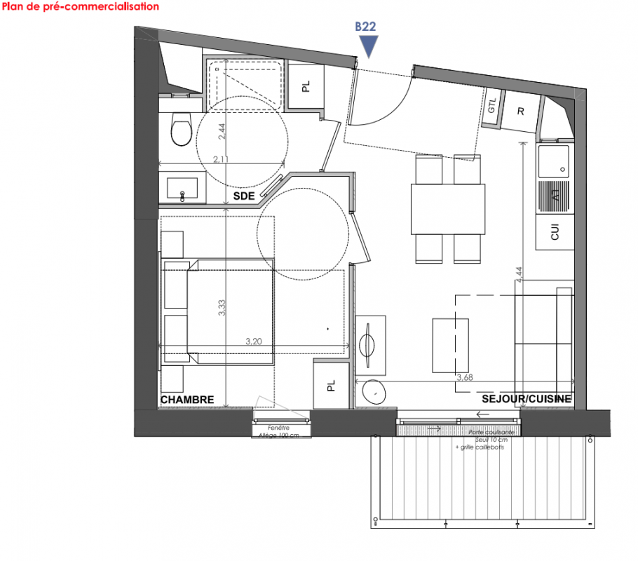
Prix
382 900€
Type
Appt. au 2ème
Pièces
T2
Surface
37.23 m²
Exposition
Sud
Ville
Hauteluce (73620)
Livraison
4ème trimestre 2027
Informations
01 81 80 39 10

Présentation du programme "SAIRENA"

Prenez rendez-vous dès aujourd'hui dans notre espace de vente – Route du Mont Bisanne à Hauteluce – au 04 84 31 38 00 !
Au cœur de la station familiale des Saisies, découvrez SAIRENA, une résidence intimiste de plusieurs chalets situés au pied des pistes de ski, à deux pas du centre du village et de ses commerces. Du 2 au 5 pièces, chaque appartement neuf offre confort, balcon avec vue sur les montagnes, cave et stationnement privatif.
Propriétaire à 100 %, vous profitez de votre bien plusieurs semaines par an et confiez la gestion locative à CGH Résidences & Spas, spécialiste reconnu de l'hôtellerie de montagne.

Un investissement immobilier rare aux Saisies, alliant sécurité patrimoniale, cadre de vie exceptionnel et rendement locatif optimisé été comme hiver.

Autres logements T2 du programme "SAIRENA"

Pas de logements disponibles