Prix
92 800€
Type
Appt. au 2ème
Pièces
Studio
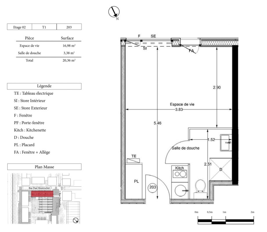
Surface
20.37 m²
Exposition
Sud
Ville
Lyon 2ème (69002)
Livraison
1er trimestre 2025
Informations
01 81 80 39 10

Présentation du programme "Résidence Étudiante Studéa Lyon Confluence"

Descriptif résidenceLocalisation & QuartierLa résidence est située dans un quartier résidentiel et vivant, à proximité immédiate de nombreux établissements d’enseignement supérieur, commerces et transports.Quartier Monplaisir : calme, bien desservi, avec une ambiance étudianteÀ proximité du Parc Blandan et de la Manufacture des TabacsCommerces, boulangeries, pharmacies, supermarchés accessibles à pied AccessibilitéLa résidence est très bien connectée : Métro D, Tram T2 et T4, Bus, Accès rapide aux gares Part-Dieu, Jean-Macé et PerracheUniversités et Écoles à ProximitéLa résidence est particulièrement bien située pour les étudiants des établissements suivants : Université Lyon III – Manufacture des TabacsFacultés de Médecine et de PharmacieSciences UISEGSEPRLycée Lumière, Lycée Martinière Monplaisir, Lycée ColbertÉcole Césame, CrespaCentres d’intérêt à proximitéParc Blandan : détente, sport, événementsCinémas, restaurants, cafés étudiantsHalles Paul Bocuse et centre commercial Part-Dieu accessibles en transportsDescriptif gestionnaireDepuis sa création en 1987, Studéa s’est imposée comme un acteur incontournable dans le domaine des résidences étudiantes en France et a su s’adapter aux évolutions du marché.Nexity Studéa se positionne comme un acteur solide et en constante expansion, fièrement porté par des valeurs telles que la proximité, le bien-être et la responsabilité. L’approche de Nexity Studéa combine les rôles de promoteur et de gestionnaire, assurant une offre de logements modernes et bien équipés : studios et appartements meublés, espaces communs, sécurité, Internet haut débit et salles de sport. Ces résidences, implantées stratégiquement dans diverses localités, répondent aux besoins spécifiques des étudiants, qu’ils soient dans les grandes métropoles universitaires ou dans les villes de province.Extrait du bail commercialObligations du Bailleur• Réparations et travaux :Prendre en charge les grosses réparations et les travaux de mise en conformité.Financer les travaux de rénovation des logements pour un montant défini sur le projet de bail si plan de travaux prévu.• Charges et taxes :Assumer les impôts, taxes et redevances légales, y compris la taxe foncière et les taxes sur les ordures ménagères.Prendre en charge les frais de gestion du local ou de l'immeuble.• Garantie de jouissance paisible :Assurer une jouissance paisible des locaux et permettre un usage conforme à la destination du bail.• Clause d’exclusivité commerciale :Ne pas exp...

Autres logements Studio du programme "Résidence Étudiante Studéa Lyon Confluence"

Disponibilité Prix Genre Pièces Surface Étage
Voir
Disponible
97 400€ Appt. Studio 19.59m2 5ème
DO NOT CLICK